Postponed | Lot 24

Kimberley Street, Bishop Auckland, County Durham, DL14 8UA

Postponed

  • Terraced Bungalow
  • 15 Bedrooms
  • Tenure: See Legal Pack

Call the team on 0191 908 9691 for more information

Auction Date

Tue 11/12/2018

Auction Time

19:00

Auction Venue

Ramside Hall Hotel Carrville, Durham, DH1 1TD

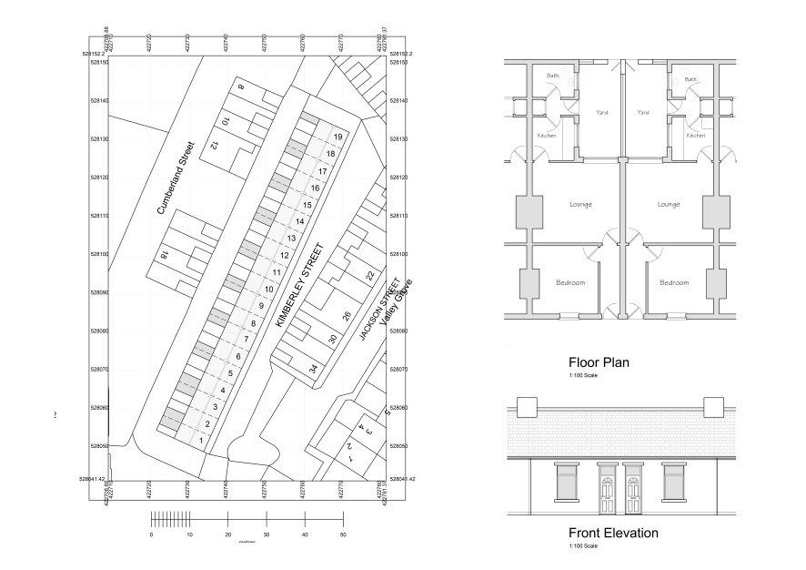
HERE IT IS, YOUR VERY OWN STREET FOR SALE. 15 x ONE BED BUNGALOWS, A RARE OPPORTUNITY.

2,3,4,6,8,9,10,11,12,13,14,16,17,18 & 19 Kimberley Street Fifteen one bedroom bungalows for sale on Kimberley Street, Bishop Auckland. Ex housing association properties that have previously had grants to get the roofs and damp courses done. In need of some refurbishment, this portfolio is the perfect investment for many reasons. The accommodation in brief comprises, entrance hall, lounge, bedroom, kitchen, bathroom and rear yard. Located on a quiet terrace and close to local amenities and the larger surrounding towns of Bishop Auckland and Shildon these bungalows once brought back up to modern standard are sure to be a superb and popular prospect for the rental or resale market. With a guide price that works out at just over £15,500 per property this is sure to be an immensely popular lot in our auction. Viewings are being held by appointment only and viewing is highly recommended to see the potential this has to offer. Please make sure you call us today

Tenure

See Legal Pack

Energy Efficiency Rating (EPC)

Current Rating See legal pack

Services

Interested parties are invited to make their own enquiries to the relevant authorities as to the availability of the services.

Local Authority

Durham County Council

Solicitors

Kenneth M Barrow & Co, 15-16 Adelaide Row, Seaham, SR7 7EF, Tel: 0191 513 0333

Important Notice to Prospective Buyers:

We draw your attention to the Special Conditions of Sale within the Legal Pack, referring to other charges in addition to the purchase price which may become payable. Such costs may include Search Fees, reimbursement of Sellers costs and Legal Fees, and Transfer Fees amongst others.

Additional Fees

Buyer's Premium - £1500 inc VAT payable on exchange of contracts.

Administration Charge - £900 inc VAT payable on exchange of contracts.

Disbursements - Please see the legal pack for any disbursements listed that may become payable by the purchaser on completion.

View Larger Map

Disclaimer: The map preview provided above is for general guidance only and may not accurately reflect the exact location or surrounding buildings. Prospective buyers and interested parties are strongly advised to independently verify the precise location and surroundings before bidding.