For Sale By Auction | 25 November 2025 | Lot 58

13 Thames Street Chopwell, Newcastle upon Tyne, Tyne and Wear

Sold Prior

  • Property For Sale

Call the team on 0191 908 9691 for more information

Auction Closed

Viewing Times

Please call Auction House North East on 0191 908 9691 to arrange a viewing

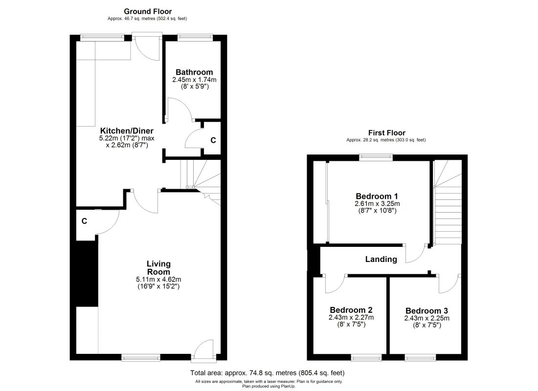
Auction Commencing on Monday 24th November at 1pm and ending 24 hours later on Tuesday 25th November at 1pm with Auction House North East Please register to bid via our website - auctionhouse.co.uk/northeastIdeal Buy-to-Let or First-Time Buy – Ready to Earn or Move Straight In! Call Your Move Rowlands Gill today on 01207 544498 to arrange a viewing!A superb investment or first-time buyer opportunity! Located in the heart of Chopwell, this three-bedroom mid-terraced house offers excellent value and strong rental potential. Recently updated with neutral décor throughout, the property is ready for immediate occupation or further cosmetic enhancement to add value. The accommodation includes a spacious lounge, a modern kitchen/diner, ground-floor bathroom, and three well-proportioned bedrooms to the first floor. Externally, there is a low-maintenance rear garden with gated access. Positioned within walking distance of shops, amenities, schools, and transport links, this property will appeal to landlords, owner-occupiers, and those seeking a reliable buy-to-let in a popular rental area. Key Features: Three-bedroom mid-terraced home Modern kitchen/diner and spacious living room Neutral décor throughout Ground-floor bathroom Low-maintenance rear garden with gated access Strong rental demand in the area – ideal buy-to-let Vacant & offered with no onward chain Council Tax Band: A Whether you’re looking for your first home, a refurbishment project, or a solid addition to your rental portfolio, 13 Thames Street presents a compelling opportunity not to be missed.Tenure: FreeholdEPC Rating: D

Portrait Video Tour

False

Services

Interested parties are invited to make their own enquiries to the relevant authorities as to the availability of the services.

Additional Fees

Administration Charge - £3,600 inc vat payable upon the fall of the virtual gavel

Disbursements - Please see the legal pack for any disbursements listed that may become payable by the purchaser on completion.