For Sale By Auction | 03 April 2024

50 Prospect Road, Scarborough, North Yorkshire

Sold Prior

  • Property For Sale

Call the team on 0191 908 9691 for more information

Auction Closed

Viewing Times

Please call Auction House North East on 0191 908 9691 to arrange a viewing

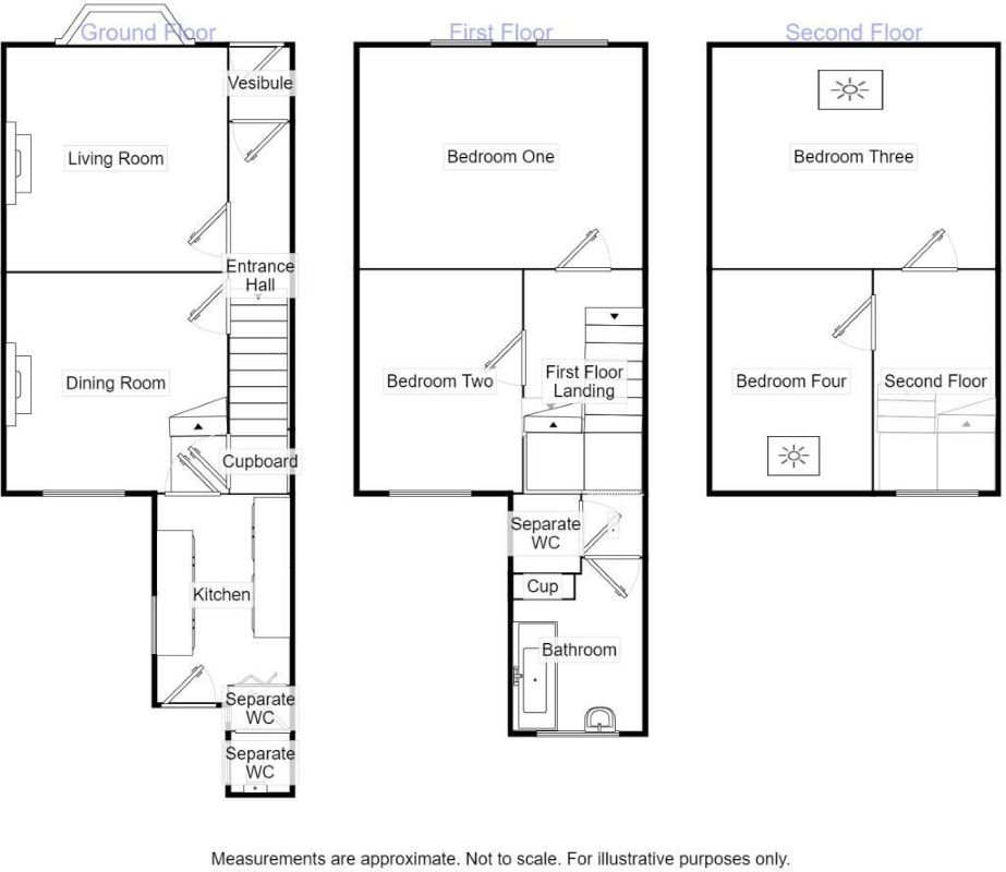
>FOUR BEDROOM HOME CLOSE TO SCARBOROUGH TOWN CENTRE VIA OUR MODERN METHOD OF AUCTION ON WEDNESDAY 3RD APRIL 2024This four bedroom home on Prospect Road is well located for Scarborough Town Centre only a short walk away from the main high street with two local convenience stores and the bus stop almost on the doorstep. The local Primary School Gladstone Road and popular Manor Road park are also in walking distance from this property. The property would suit a range of buyers, those looking for their first house, a family home or an investment and is for sale with no onward chain. The property in brief comprises: Entrance hall, living room, dining room and kitchen with WC to the ground floor, bathroom and two bedrooms to the first floor and a further two bedrooms to the second floor. Outside to the front is a forecourt entrance and a private yard to the rear. The property is double glazed with gas central heating and for sale with no onward chain. EPC Grade D and Council Tax Band B Alternative (Modern) method of Auction meaning - At the fall of the gavel or acceptance of an offer by the Seller, the Buyer will enter an exclusivity agreement with the seller. The buyer shall pay a non-refundable exclusivity fee to the value of 2.5% of the sales price or £3,500 plus VAT whichever is the greater. This symbolises the start of an exclusivity period of sale which will require an exchange of contracts to take place within 28 days of the buyer's solicitor receiving the contract pack. Completion of the sale must then take place within a further 28 days of the date of exchange of contracts. Full details and terms of exclusivity can be obtained from Auction House North East. Ground Floor Entrance Hall Double glazed entrance door. Stairs leading to the first floor. Doors leading to: Living Room 13 ft 7 x 11 ft 4 Double glazed bay window to the front elevation. Radiator. Dining Room 11 ft 8 x 10 ft 3 Double glazed window to the rear elevat

Viewing Details

Please contact Auction House North East on 01642 931060 for the viewing schedule

EPC Rating

EPC RATING D

Energy Efficiency Rating (EPC)

Current Rating D

Services

Interested parties are invited to make their own enquiries to the relevant authorities as to the availability of the services.

Additional Fees

Administration Charge - NO ADMIN FEE APPLIES TO THIS PROPERTY

Disbursements - Exclusivity Fee of 3% inc VAT of the purchase price, subject to a minimum of £4200 inc VAT, payable immediately at the conclusion of Auction

Please see the legal pack for any disbursements listed that may become payable by the purchaser on completion.