For Sale By Auction | 12:00, 17 April 2024 | Lot 85A

41-43 The Esplanade, Fleetwood, Lancashire FY7 6QE

Sold After

  • Hotel
  • 24 Bedrooms
  • Tenure: Freehold

Call the team on 01772 772450 for more information

Auction Date

Wed 17/04/2024

Auction Time

12:00

Auction Venue

Online Auction

A Vacant Freehold Former 24 bedroom Hotel Located on Fleetwood Seafront

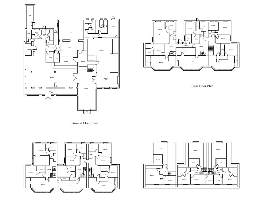
A former hotel located on the sea front adjacent to the Marina. The substantial detached 4 storey property provides first class bar, lounge and restaurant areas with spacious commercial kitchens, 24 letting bedrooms all with en suite bathrooms. The rooms provide a mix of double, family and family suites. The lot being sold is for the Property and Equipment only – no business/goodwill element as the business has now ceased trading. Although the hotel isn't currently trading, it could be re-opened if the new owner desires. The impressive property has great development potential subject to required consents. In the same ownership for over 20 years the hotel is in first class condition. LOCATION - a 3-minute walk from Fleetwood Beach, a 10-minute walk from the Beach Lighthouse and a 14-minute walk from the Fleetwood Museum. Blackpool Tower is approximately 9.4 miles away. GROUND FLOOR Reception, lobby & lift; large bar lounge, fully fitted bar counter; separate restaurant/breakfast room; commercial kitchen; ladies & gents wc, disabled wc. FIRST, SECOND & THIRD FLOORS First, Second & Third Floors: 24 bedrooms with en suite bathrooms. EXTERIOR Forecourt parking for several cars Tenure: FREEHOLD Title number: LA613582 Finance is available on this lot. For a decision-in-principle visit togethermoney.com/amydip/

Tenure

Freehold

IMPORTANT INFORMATION

Buying at auction is a contractual commitment, you are legally obliged to buy the lot on the terms of the sale memorandum at the price you bid. If you are the successful bidder, you are required to pay the deposit and auction fees immediately. As agent for the seller, we treat any failure to satisfy your obligations as your repudiation of the contract and the seller may then have a claim against you for breach of contract. You must not bid unless you wish to be bound by the common conditions of auction.

ANTI-MONEY LAUNDERING REGULATIONS

In accordance with Anti-Money Laundering Regulations, two forms of identification and confirmation of the source of funding will be required from the successful purchaser. Every effort has been made to confirm the accuracy of the lot details including any defect in the title both with the vendor and their solicitor. Auction House will not be held responsible for any failure to disclose any such defects. Any purchasers choosing to buy without viewing in person are doing so at their own risk and acknowledge that the auctioneer will not be held responsible for any issues that may arise due to them being unintentionally missed from the video or sales particulars. Please refer to legal pack for additional fees and the Auction Information document for guidance prior to bidding.

Energy Efficiency Rating (EPC)

Current Rating C

Local Authority

Wyre Borough Council

Solicitors

Birchall Blackburn Law, Ref: Jane Lockwood, Tel: 01772 552187

Important Notice to Prospective Buyers:

We draw your attention to the Special Conditions of Sale within the Legal Pack, referring to other charges in addition to the purchase price which may become payable. Such costs may include Search Fees, reimbursement of Sellers costs and Legal Fees, and Transfer Fees amongst others.

Additional Fees

Administration Charge - 1.98% inc VAT of the purchase price, subject to a minimum of £1980 inc VAT, payable on exchange of contracts.

Disbursements - Please see the legal pack for any disbursements listed that may become payable by the purchaser on completion.

View Larger Map

Disclaimer: The map preview provided above is for general guidance only and may not accurately reflect the exact location or surrounding buildings. Prospective buyers and interested parties are strongly advised to independently verify the precise location and surroundings before bidding.