For Sale By Auction | 12:00, 11 February 2026 | Lot 53

Former Everton FC Superstore, 183-189 Walton Lane, Liverpool, Merseyside L4 4HH

*Guide | £625,000 (plus fees)

  • Retail Property (out of town)
  • Tenure: Freehold

Call the team on 01772 772450 for more information

Auction Date

Wed 11/02/2026

Auction Time

12:00

Auction Venue

Online Auction

Prominent Roadside Superstore 8,290 Sq.Ft. With Parking For c30 Cars

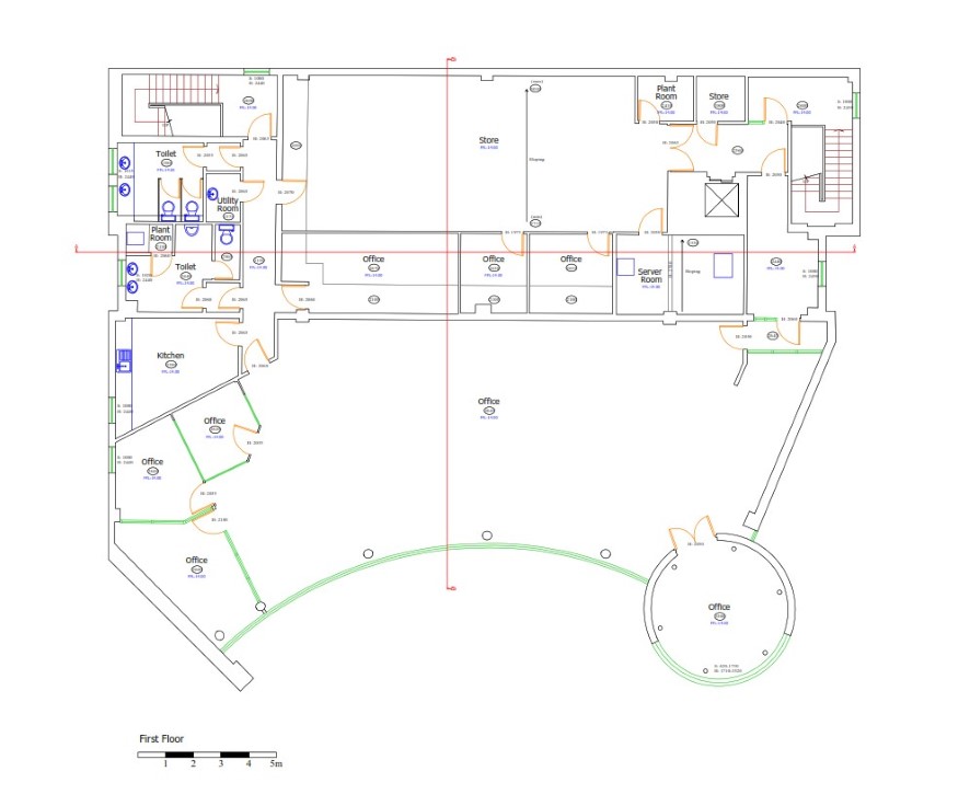
A prominent modern two storey former superstore with adjacent gated car park to the rear, suitable for 30 plus cars. The unit briefly provides, ground floor open plan showroom with extensive shop frontage secured by electric roller shutters and lift and two stairwells leading to the first floor providing further showroom/office area plus staff facilities and storage. The unit benefits from air conditioning, suspended ceilings and spot and strip lighting. Previously occupied by Everton Football Club as their club shop, now considered suitable for a variety of uses, subject to the required consents being obtained. Accommodation Approximate net internal floor areas: - Ground Floor – 4,145 sq.ft. First Floor – 4,145 sq.ft. Total NIA – 8,290 sq.ft. Location Occupying a prominent roadside position situated on Walton Lane, adjacent Goodison Park Football Stadium, home to Everton Football Club (Women) and opposite Stanley Park. The property also benefits from c.30 space car park to the rear with access from Langham Street. Nearby occupiers include Aldi, McDonalds, Iceland and JD Wetherspoons. Walton sits north of Anfield and east of Bootle and Orrell Parks and boasts a large residential population of c.95,000. Tenure: Freehold x 4 Title number: MS154694, MS296033, MS354948, MS509730 Length of Lease/Term: Ground Rent : £ Service Charge: £ Council Tax Band : n/a Local Authority: Liverpool Finance is available on this lot. For a decision-in-principle visit togethermoney.com/amydip/

Tenure

Freehold

IMPORTANT INFORMATION

Buying at auction is a contractual commitment, you are legally obliged to buy the lot on the terms of the sale memorandum at the price you bid. If you are the successful bidder, you are required to pay the deposit and auction fees immediately. As agent for the seller, we treat any failure to satisfy your obligations as your repudiation of the contract and the seller may then have a claim against you for breach of contract. You must not bid unless you wish to be bound by the common conditions of auction.

ANTI-MONEY LAUNDERING REGULATIONS

In accordance with Anti-Money Laundering Regulations, two forms of identification and confirmation of the source of funding will be required from the successful purchaser. Every effort has been made to confirm the accuracy of the lot details including any defect in the title both with the vendor and their solicitor. Auction House will not be held responsible for any failure to disclose any such defects. Any purchasers choosing to buy without viewing in person are doing so at their own risk and acknowledge that the auctioneer will not be held responsible for any issues that may arise due to them being unintentionally missed from the video or sales particulars. Please refer to legal pack for additional fees and the Auction Information document for guidance prior to bidding.

Energy Efficiency Rating (EPC)

Current Rating D

Local Authority

Liverpool City Council

Solicitors

Hill Dickinson, Ref: Hill Dickinson, Tel: 0151 600 8818

Important Notice to Prospective Buyers:

We draw your attention to the Special Conditions of Sale within the Legal Pack, referring to other charges in addition to the purchase price which may become payable. Such costs may include Search Fees, reimbursement of Sellers costs and Legal Fees, and Transfer Fees amongst others.

Additional Fees

Administration Charge - 2.5% inc VAT of the purchase price, subject to a minimum of £2500 inc VAT, payable on exchange of contracts.

Disbursements - Please see the legal pack for any disbursements listed that may become payable by the purchaser on completion.

View Larger Map

Disclaimer: The map preview provided above is for general guidance only and may not accurately reflect the exact location or surrounding buildings. Prospective buyers and interested parties are strongly advised to independently verify the precise location and surroundings before bidding.