For Sale By Auction | 14:00, 26 March 2026

114 Hilltown, Dundee, Angus DD3 7BG

*Guide | £75,000 (plus fees)

  • Commercial Property
  • Tenure: Freehold

Call the team on 0141 339 4466 for more information

Auction Date

Thu 26/03/2026

Auction Time

14:00

Auction Venue

Live Stream

Development opportunity in Dundee

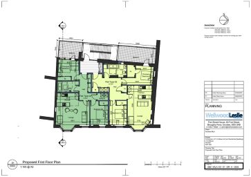
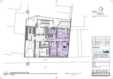
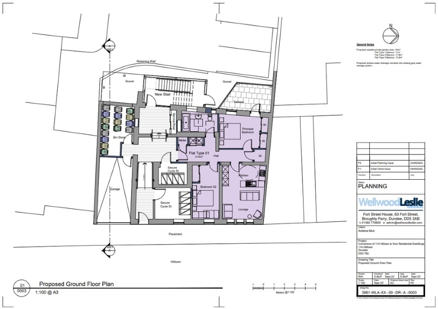
Going under the hammer is this ready-made development opportunity with full planning permission in the Hilltown area of Dundee. The property was a former mill and currently has planning permission to convert into five two-bedroom flats across three storeys with bin shed and cycle storage. Full details of the planning can be accessed by Dundee city council planning portal using the reference 22/00699/FULL. Similar sized new build flats nearby are achieving up to £200,000. This is sure to attract lots of attention from developers locally and further afield and early expression is highly recommended to avoid missing out.

Tenure

Freehold

Area

Located in a well-established residential area of Dundee, close to local amenities, supermarkets, primary and secondary schools, public transport routes and easy access to Dundee city centre and universities. This area is popular with renters, first-time buyers, and students, making it an excellent investment location.

Local Authority

Dundee City Council

Important Notice to Prospective Buyers:

We draw your attention to the Special Conditions of Sale within the Legal Pack, referring to other charges in addition to the purchase price which may become payable. Such costs may include Search Fees, reimbursement of Sellers costs and Legal Fees, and Transfer Fees amongst others.

Additional Fees

Administration Charge - 3.6% inc VAT of the purchase price, subject to a minimum of £3600 inc VAT, payable on exchange of contracts.

Disbursements - Please see the legal pack for any disbursements listed that may become payable by the purchaser on completion.

View Larger Map

Disclaimer: The map preview provided above is for general guidance only and may not accurately reflect the exact location or surrounding buildings. Prospective buyers and interested parties are strongly advised to independently verify the precise location and surroundings before bidding.