For Sale By Auction | 14:00, 22 April 2026

Lord Cullen House, 127 Causewayend, Aberdeen AB25 3UB

*Guide | £450,000 (plus fees)

  • Commercial Property
  • Tenure: Freehold

Call the team on 0141 339 4466 for more information

Auction Date

Wed 22/04/2026

Auction Time

14:00

Auction Venue

Live Stream

Development opportunity

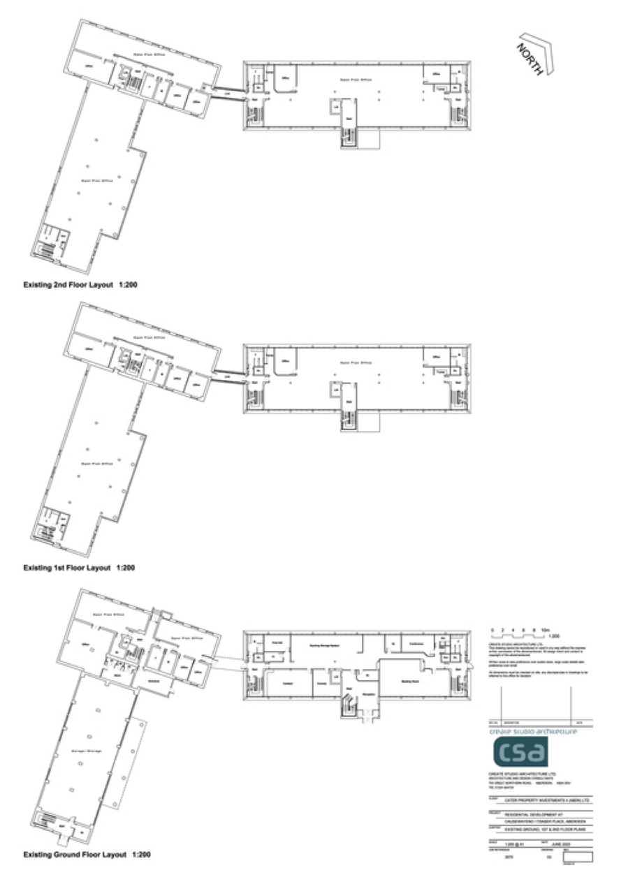
If you are looking for an exceptional development opportunity close to Aberdeen city centre this substantial former office complex is sure to catch your eye. Within close proximity to Aberdeen University, this site offers huge development potential The property is currently arranged over three/four floors, extending to approximately 4,069 sq. metres, and is formed of two principal blocks connected via an enclosed walkway. Most recently, the premises were occupied by the Health and Safety Executive, VisitScotland, and the Met Office, and are now offered with vacant possession The site benefits from a pre-planning application approved by Aberdeen City Council under Reference 250101/PREAPP, outlining a proposal to develop up to 70 residential units. Given its proximity to the University and strong local demand for student and private accommodation, this property offers excellent potential for conversion to residential, mixed-use, or purpose-built student housing (subject to full planning approval). In total, there are 58 on-site parking spaces, alongside a ground-floor garage. A portion of the parking area and the garage is currently let on an informal (non-income producing) basis, with the remainder of the parking managed by a third-party parking provider, again producing only nominal income. Both arrangements can be terminated with one month’s notice. Early viewing is highly recommended to fully appreciate the scale, flexibility, and outstanding potential of this landmark property. Please note that the property is elected for VAT.

Tenure

Freehold

Area

Situated in a well-connected area close to the University of Aberdeen, the property enjoys convenient access to King Street, Old Aberdeen, and the city centre. The location is well-served by public transport links and local amenities, making it an ideal position for future residential use or a modernised commercial development. Lord Cullen House enjoys convenient location approximately 1.5 miles from Aberdeen city centre. A range of facilities are available locally, with a fuller range in the nearby city centre. Aberdeen beach is close by, and the property also offers close proximity to Aberdeen University.

Energy Efficiency Rating (EPC)

Current Rating C

Local Authority

Aberdeen City Council

Important Notice to Prospective Buyers:

We draw your attention to the Special Conditions of Sale within the Legal Pack, referring to other charges in addition to the purchase price which may become payable. Such costs may include Search Fees, reimbursement of Sellers costs and Legal Fees, and Transfer Fees amongst others.

Additional Fees

Administration Charge - 3.6% inc VAT of the purchase price, subject to a minimum of £3600 inc VAT, payable on exchange of contracts.

Disbursements - Please see the legal pack for any disbursements listed that may become payable by the purchaser on completion.

View Larger Map

Disclaimer: The map preview provided above is for general guidance only and may not accurately reflect the exact location or surrounding buildings. Prospective buyers and interested parties are strongly advised to independently verify the precise location and surroundings before bidding.