Sold Prior | Lot 23

162 Albert Road, Plymouth, Devon PL2 1AQ

Sold Prior

  • Terraced House
  • 4 Bedrooms
  • Tenure: Freehold

Call the team on 01752 474200 for more information

Auction Date

Thu 08/05/2025

Auction Time

14:00

Auction Venue

Live Stream

Mixed Use Freehold Investment

A mixed use investment property located in a popular location close to the Royal Naval Base in Devonport.

Tenure

Freehold

AUCTIONEERS NOTE

The property comprises a shop on the ground floor which is currently rented on a 4 year lease from 2024 with an income of £500 pcm. Above this, an extended FOUR bedroom house operates as a multi-room let property with tenants in situ. 3 Rooms are tenanted and returning an income of £1,445pcm. A further room is currently vacant but being advertised at £455pcm. An incredible investment opportunity with returns of £28,800 per annum on full occupancy. PLEASE NOTE: Local search expected to be returned on '26 Mar 2025'.

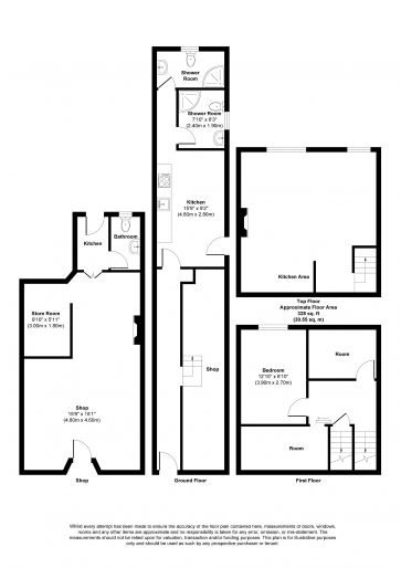
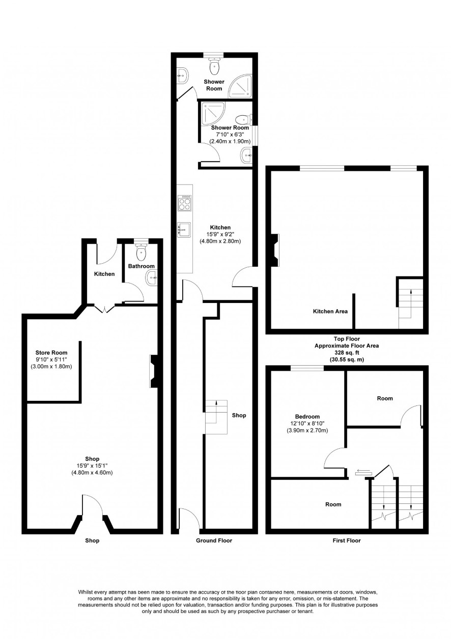
ACCOMMODATION

Shop area Store Kitchen area WC Entrance Hall Communal Kitchen / Living Area Bathroom One Bathroom Two Bedroom Two Bedroom Three Bedroom Four Bedroom One

VIEWINGS

Regular block viewing sessions will be provided in the lead up to the auction. Please telephone Auction House South West on 03456 461361 to request a viewing.

FULL DETAILS

Photographs, Dimensions, Floor Plans and Area Measurements (when available) are included within our full details online on our website. All published information is to aid identification of the property and is not necessarily to scale.

NOTICE TO BIDDER

Please be aware that if your Bid is successful on Auction day the exchange of contracts will happen immediately after the Auction.

Energy Efficiency Rating (EPC)

Current Rating D55

Local Authority

Plymouth City Council

Solicitors

Southern Stewart Walker Solicitors, Ref: Claire Stanton, Tel: 0191 427 0770

Important Notice to Prospective Buyers:

We draw your attention to the Special Conditions of Sale within the Legal Pack, referring to other charges in addition to the purchase price which may become payable. Such costs may include Search Fees, reimbursement of Sellers costs and Legal Fees, and Transfer Fees amongst others.

Additional Fees

Administration Charge - £1200 inc VAT payable on exchange of contracts.

Disbursements - Please see the legal pack for any disbursements listed that may become payable by the purchaser on completion.

View Larger Map

Disclaimer: The map preview provided above is for general guidance only and may not accurately reflect the exact location or surrounding buildings. Prospective buyers and interested parties are strongly advised to independently verify the precise location and surroundings before bidding.