For Sale By Auction | 14:00, 25 July 2018 | Lot 7

21 High Street, Falmouth, Cornwall, TR11 2AB

Sold £328,000

  • Mixed Use
  • Tenure: Freehold

Call the team on 01752 474200 for more information

Auction Date

Wed 25/07/2018

Auction Time

14:00

Auction Venue

Unknown

OVERVIEW

A substantial "mixed use" investment property situated close to town centre and in need of some improvement. The ground floor is occupied by the Thai Orchid restaurant and their rent is currently £20,800 per annum (gross). The upper floors are arranged as 8 bedroom residential accommodation and currently some bedrooms are let on an informal basis. The property has undergone some refurbishment and improvement in recent times but further improvement would be beneficial. There maybe potential to redevelop this building (subject to planning permission).

Tenure

Freehold

AUCTIONEERS NOTE

We believe a new business lease is being drawn up to regularise the ground floor letting arrangements and we expect this new lease to form part of the auction legal pack.

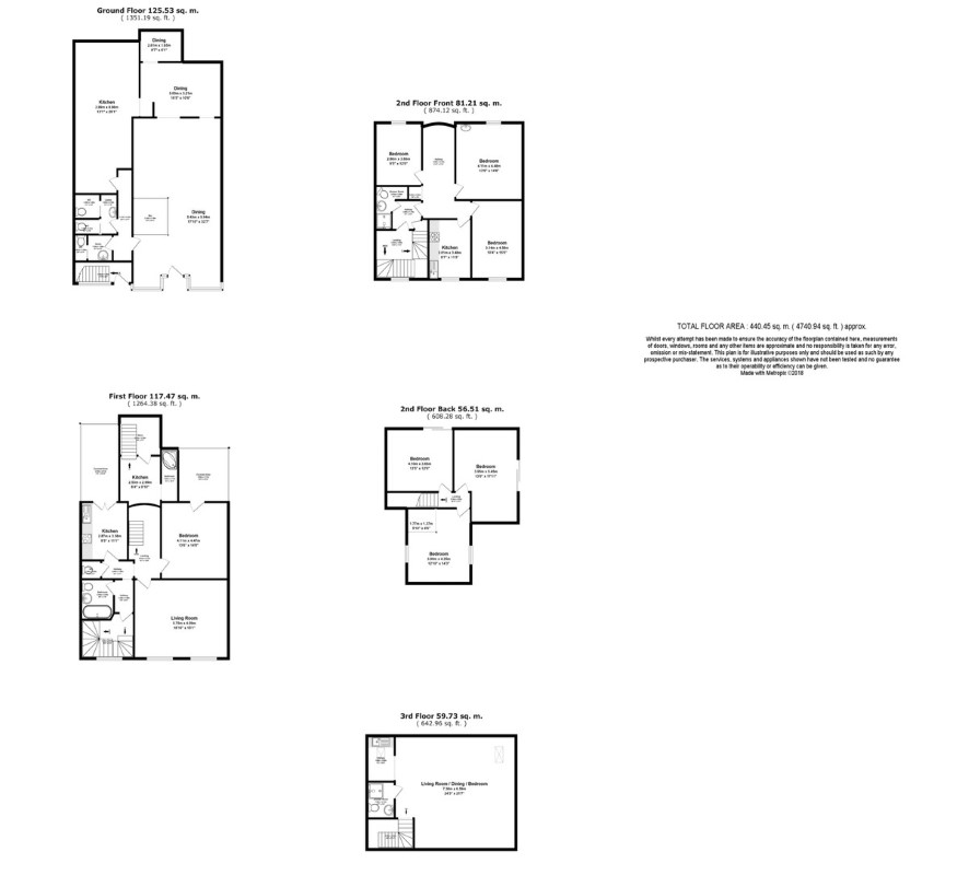
GROUND FLOOR

Restaurant / dining area, commercial kitchen, store and toilets.

FIRST FLOOR

Living room, bedroom, bathroom and kitchen.

SECOND FLOOR

Six bedrooms, bathroom and kitchen.

THIRD FLOOR

Bed / sitting room, shower room and kitchenette.

OUTSIDE

There is access to a small outside space from the third floor room.

VIEWINGS

There will be regular viewing sessions in the lead up to the auction. Please telephone joint auctioneers Harding and Wakefield T: 01326 450020 or Auction House Devon and Cornwall T: 01392 455928 to arrange an appointment.

SOLICITORS

Grylls & Paige Solicitors, Bank House, West End, Redruth, TR15 2SD T: 01209 215261 Attn: Mark Hayward E: markh@grylls-paige.co.uk

FULL DETAILS

Photographs, room dimensions, floor plans and area measurements (when available) are included within our full details online at www.auctionhouse.co.uk. All published information is to aid identification of the property and is not to scale.

Energy Efficiency Rating (EPC)

Current Rating Domestic and Non Domestic - Band E

Local Authority

Cornwall County Council

Important Notice to Prospective Buyers:

We draw your attention to the Special Conditions of Sale within the Legal Pack, referring to other charges in addition to the purchase price which may become payable. Such costs may include Search Fees, reimbursement of Sellers costs and Legal Fees, and Transfer Fees amongst others.

Additional Fees

Administration Charge - £600 inc VAT payable on exchange of contracts.

Disbursements - Please see the legal pack for any disbursements listed that may become payable by the purchaser on completion.

View Larger Map

Disclaimer: The map preview provided above is for general guidance only and may not accurately reflect the exact location or surrounding buildings. Prospective buyers and interested parties are strongly advised to independently verify the precise location and surroundings before bidding.