Postponed | Lot 39

7 Talbot Street, Maesteg, Bridgend CF34 9BT

Postponed

  • Commercial Property
  • Tenure: Freehold

Call the team on 02920 475 184 for more information

Auction Date

Wed 01/05/2024

Auction Time

12:00

Auction Venue

ONLINE

Commercial Investment/Development Opportunity

An opportunity to acquire a substantial 2887sqft/270.14sqm vacant three storey mid terraced commercial property, There is an opportunity to develop the upper two floors which benefit from a self-contained entrance. The upper floor accommodation is in need of full refurbishment with original features and was formerly used as offices, in our opinion it would lend itself to a residential development opportunity subject to all necessary consents. The building also benefits from off road parking area to the rear. Alternatively, it would provide an ideal investment opportunity. The building is located on the high street in Maesteg, close to a number of local and National retailers. Good access is provided to the M4. NB VAT is payable on the purchase price.

Tenure

Freehold

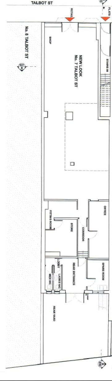
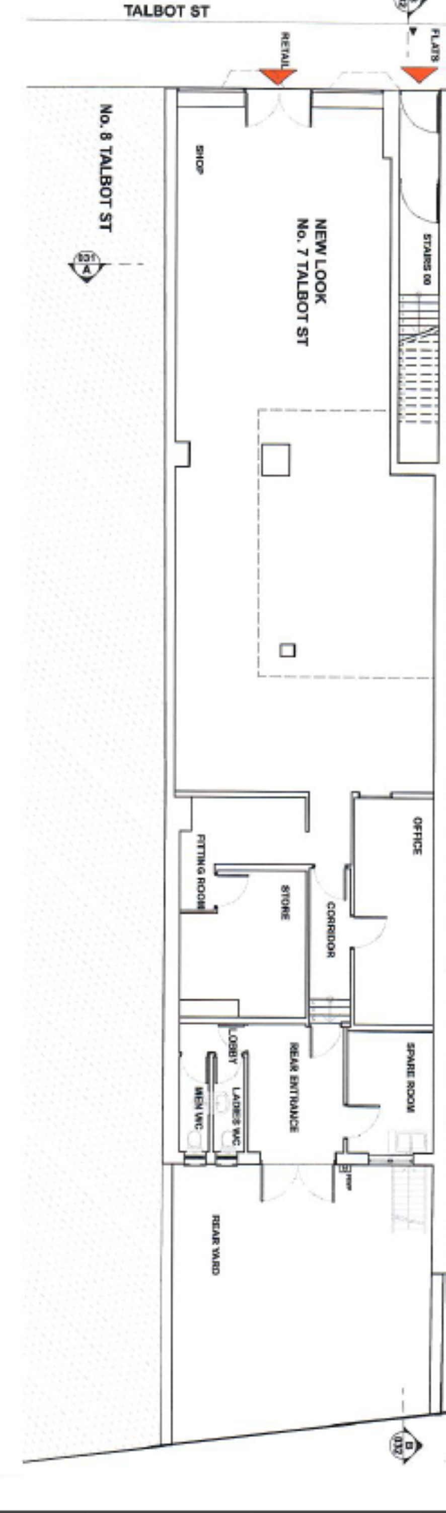
Ground Floor

Self-contained entrance with stairs leading to first floor accommodation. Main through retail sales area with glazed display frontage either side of the customer entrance doorway, changing rooms, stock room, office, further storeroom, staff room, w/c.

Split Level First Floor

Landing, two rooms to the rear annexe and three further rooms to the front of the building.

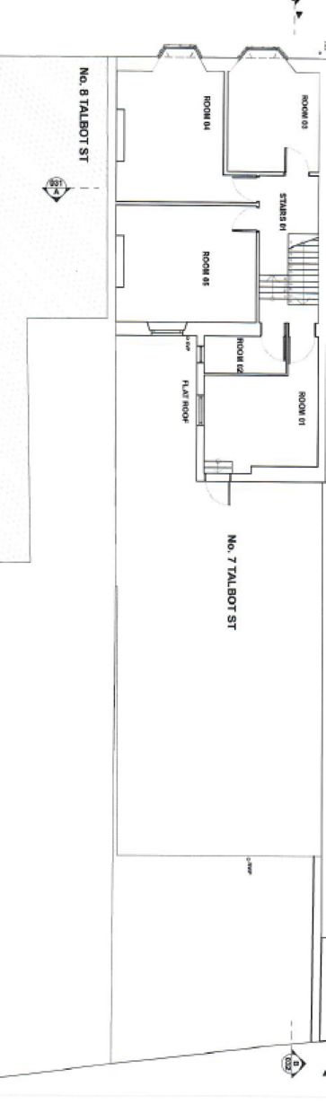
Second Floor

Landing, three rooms.

Outside

To the rear is an off road parking with wide lane access for deliveries.

Viewings

Auction House Wales 02920 475184

Energy Efficiency Rating (EPC)

Current Rating D

Local Authority

Bridgend County Borough Council

Solicitors

Howells Solicitors, Fitzalan House, Ref: Howells Solicitors, Tel: 029 2040 4020

Important Notice to Prospective Buyers:

We draw your attention to the Special Conditions of Sale within the Legal Pack, referring to other charges in addition to the purchase price which may become payable. Such costs may include Search Fees, reimbursement of Sellers costs and Legal Fees, and Transfer Fees amongst others.

Additional Fees

Buyer's Premium - £600 inc VAT payable on exchange of contracts.

Administration Charge - 1.2% inc VAT of the purchase price, subject to a minimum of £1200 inc VAT, payable on exchange of contracts.

Disbursements - Please see the legal pack for any disbursements listed that may become payable by the purchaser on completion.

View Larger Map

Disclaimer: The map preview provided above is for general guidance only and may not accurately reflect the exact location or surrounding buildings. Prospective buyers and interested parties are strongly advised to independently verify the precise location and surroundings before bidding.