Postponed | Lot 40

3 Baldwin Street, Newport NP20 2LT

Postponed

  • House of Multiple Occupation
  • 6 Bedrooms
  • Tenure: See Legal Pack

Call the team on 02920 475 184 for more information

Auction Date

Wed 01/05/2024

Auction Time

12:00

Auction Venue

ONLINE

Residential Investment - Current Income £58,500 PA

A substantial HMO renovated to high standard with 3 double bedrooms, 3 single bedrooms, two bathrooms, two shower rooms and a WC. There is double glazing throughout and gas central heating. (not tested) The property is located just outside Newport City centre within walking distance of all the local amenities on Commercial Road. The tenants are responsible for their own gas and electric. All buyers are advised to inspect the legal pack for reference to all HMO licencing and tenancy agreements.

Tenure

See Legal Pack

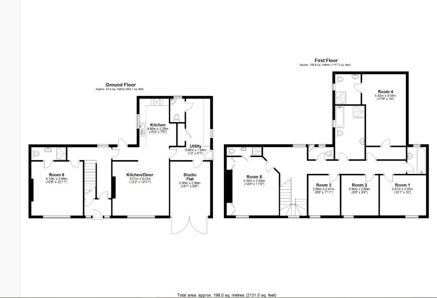
Ground Floor

Entrance hall, spacious open plan kitchen and dining area, a utility room and one of the double rooms with an en-suite shower room.

First Floor

Three single rooms, two separate bathrooms, a WC and two double bedrooms both with en-suite shower rooms.

Council Tax Band B

Outside

Rear garden.

Local Authority

Newport City Council

Solicitors

Rubin Lewis O'Brien, Gwent House, Ref: Rubin Lewis O'Brien, Tel: 01633 867000

Important Notice to Prospective Buyers:

We draw your attention to the Special Conditions of Sale within the Legal Pack, referring to other charges in addition to the purchase price which may become payable. Such costs may include Search Fees, reimbursement of Sellers costs and Legal Fees, and Transfer Fees amongst others.

Additional Fees

Administration Charge - 1.2% inc VAT of the purchase price, subject to a minimum of £1200 inc VAT, payable on exchange of contracts.

Disbursements - Please see the legal pack for any disbursements listed that may become payable by the purchaser on completion.

View Larger Map

Disclaimer: The map preview provided above is for general guidance only and may not accurately reflect the exact location or surrounding buildings. Prospective buyers and interested parties are strongly advised to independently verify the precise location and surroundings before bidding.