Postponed | Lot 41

247 Penarth Road, Cardiff CF11 6FS

Postponed

  • Block of Apartments
  • Tenure: See Legal Pack

Call the team on 02920 475 184 for more information

Auction Date

Wed 01/05/2024

Auction Time

12:00

Auction Venue

ONLINE

Residential Investment Opportunity

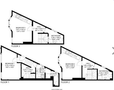
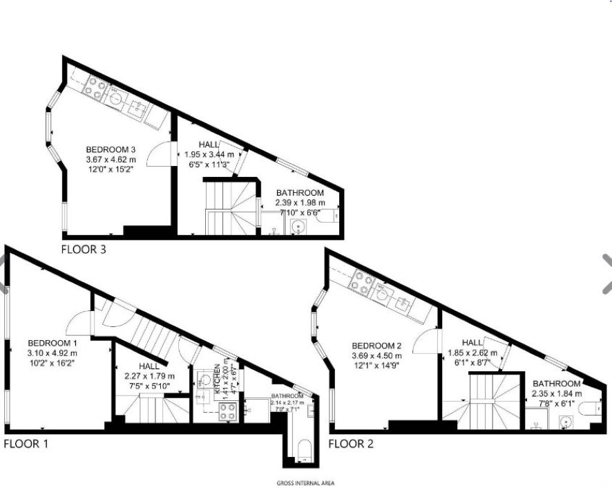
End of terrace house over three floors which been converted to provide 3 x studio apartments. The property is located on Penarth road just outside Cardiff city centre within walking distance of all the local amenities. Each flat benefits from its own kitchen and bathroom facilities. The property is to be sold with vacant possession and could be changed to a HMO subject to the usual consents. The flats have been previously marketed on Air BnB.

Tenure

See Legal Pack

Ground Floor

Open plan living area / bedroom, kitchen and shower room.

First Floor

Open plan living area / bedroom, kitchen and shower room.

Second Floor

Open plan living area, kitchen and shower room.

Viewings

Via Auction House Wales.

Council Tax Band - D

Energy Efficiency Rating (EPC)

Current Rating D

Local Authority

Cardiff Council

Solicitors

Howells Solicitors, Fitzalan House, Ref: Howells Solicitors, Tel: 029 2040 4020

Important Notice to Prospective Buyers:

We draw your attention to the Special Conditions of Sale within the Legal Pack, referring to other charges in addition to the purchase price which may become payable. Such costs may include Search Fees, reimbursement of Sellers costs and Legal Fees, and Transfer Fees amongst others.

Additional Fees

Administration Charge - 1.2% inc VAT of the purchase price, subject to a minimum of £1200 inc VAT, payable on exchange of contracts.

Disbursements - Please see the legal pack for any disbursements listed that may become payable by the purchaser on completion.

View Larger Map

Disclaimer: The map preview provided above is for general guidance only and may not accurately reflect the exact location or surrounding buildings. Prospective buyers and interested parties are strongly advised to independently verify the precise location and surroundings before bidding.