Sold Prior | Lot 14

22-26 Park Road, Bingley, BD16 4JD

Sold Prior

  • Mixed Use
  • Tenure: Freehold

Call the team on 0113 393 3482 for more information

Auction Date

Wed 02/09/2020

Auction Time

14:00

Auction Venue

Live Stream Auction

This exciting mixed-use investment is currently fully let to four tenants and is producing an annual income of £35,000. The tenants include an estate agent, restaurant, launderette and hot food takeaway with occupancy ranging between five and twelve years. The property is located on an established retail parade in the market town of Bingley, with the local train station just a three minute walk away according to Google. Any purchasers choosing to buy without viewing in person are doing so at their own risk and acknowledge that the auctioneer will not be held responsible for any issues that may arise due to them being unintentionally missed from the video or sales particulars.

Tenure

Freehold

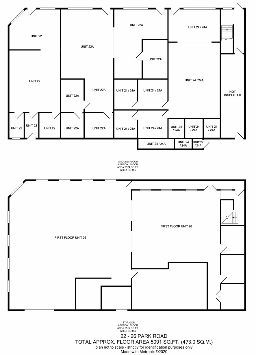
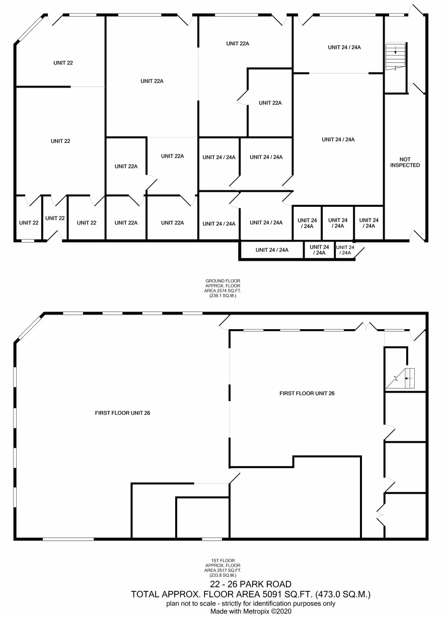
Ground Floor

Three retail units

First Floor

Restaurant

Charges and Payments

In addition to the deposit Administration Charge: 0.9% inc VAT of the purchase price subject to a minimum of £1,200 inc VAT.

Local Authority

Bradford Metropolitan District Council

Important Notice to Prospective Buyers:

We draw your attention to the Special Conditions of Sale within the Legal Pack, referring to other charges in addition to the purchase price which may become payable. Such costs may include Search Fees, reimbursement of Sellers costs and Legal Fees, and Transfer Fees amongst others.

Additional Fees

Administration Charge - See above

Disbursements - Please see the legal pack for any disbursements listed that may become payable by the purchaser on completion.

View Larger Map

Disclaimer: The map preview provided above is for general guidance only and may not accurately reflect the exact location or surrounding buildings. Prospective buyers and interested parties are strongly advised to independently verify the precise location and surroundings before bidding.