Sold Prior | Lot 15a

Springwood, Priesthorpe Road, Farsley, Leeds, West Yorkshire, LS28 5RE

Sold Prior

  • Detached House
  • 7 Bedrooms
  • Tenure: Freehold

Call the team on 0113 393 3482 for more information

Auction Date

Wed 02/09/2020

Auction Time

14:00

Auction Venue

Live Stream Auction

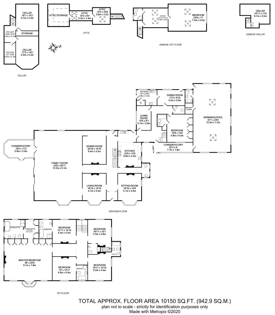
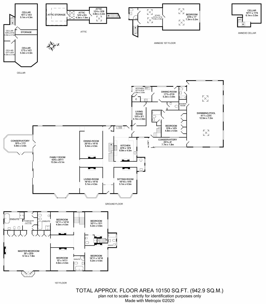
****ONCE IN A LIFETIME OPPORTUNITY*** Set within three peaceful acres of gardens and woodland, on a hugely desirable private road in Farsley, comes this impressive seven bedroom country house. The property has been extended to one side to create a self-contained annexe (over two floors) with kitchen facilities and a leisure complex incorporating an indoor swimming pool, hot tub area and steam room. With over 10,000 square feet of living accommodation the property offers scope to develop or improve to your own standards. Most of the bedrooms have their own ensuite bathrooms and a ground floor reception room measures more than 40ft in length! Externally, there is a secure gated access, plenty of off-street parking plus turning circle and various outbuilding structures all set within large gardens and woodlands. This property must be seen to appreciate the character, accommodation, grounds and potential of this property. Please call the office to find out the viewing times. Please note: A 14 day completion applies to this lot. Any purchasers choosing to buy without viewing in person are doing so at their own risk and acknowledge that the auctioneer will not be held responsible for any issues that may arise due to them being unintentionally missed from the video or sales particulars.

Tenure

Freehold

Basement

Cellars

Ground Floor Inc Annexe

Three living rooms, two dining rooms, two kitchens, family room, two conservatories, four WCs, bedroom with en-suite bathroom, swimming pool and steam room.

Annexe First Floor

Bedroom, study and shower room

First Floor

Landing, master bedroom with ensuite bathroom and dressing room. Three bedrooms with en-suite bathrooms and one further bedroom with en-suite WC.

Externally

Gated driveway, three acres of woodland and gardens.

Second Floor

Three attic rooms.

Charges and Payments

In addition to the deposit Administration Charge: 0.9% inc VAT of the purchase price subject to a minimum of £1,200 inc VAT Buyer's Premium: £1,140 inc VAT.

Important Notice to Prospective Buyers:

We draw your attention to the Special Conditions of Sale within the Legal Pack, referring to other charges in addition to the purchase price which may become payable. Such costs may include Search Fees, reimbursement of Sellers costs and Legal Fees, and Transfer Fees amongst others.

Additional Fees

Administration Charge - See above

Disbursements - Please see the legal pack for any disbursements listed that may become payable by the purchaser on completion.

View Larger Map

Disclaimer: The map preview provided above is for general guidance only and may not accurately reflect the exact location or surrounding buildings. Prospective buyers and interested parties are strongly advised to independently verify the precise location and surroundings before bidding.