Sold Prior | Lot 29

The Pie Shed, 1 Green Lane, Dewsbury, WF13 4DH

Sold Prior

  • Retail Property (high street)
  • Tenure: Freehold

Call the team on 0113 393 3482 for more information

Auction Date

Wed 03/02/2021

Auction Time

14:00

Auction Venue

Live Stream Auction

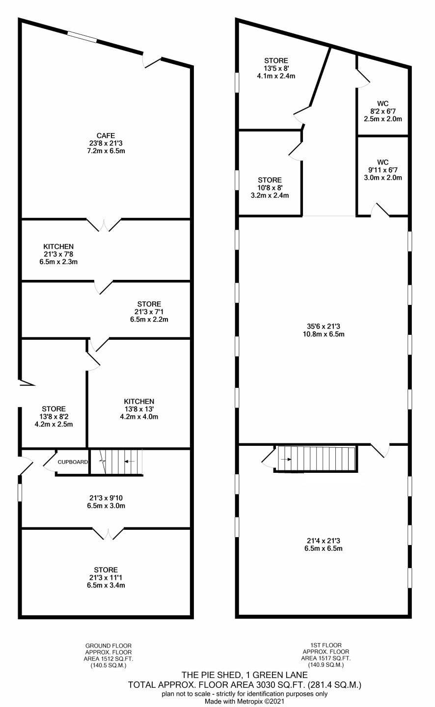
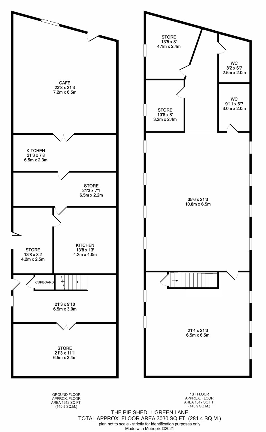
This tenanted café with workshop over two floors, totalling 315 sq m (3,400 sq ft), is currently let producing an annual income of £10,171 (which includes a £571 contribution towards building insurance). This offers investors the chance to achieve a gross return of 8.4% when based on the quoted guide price with potential to increase further depending on how the property is developed in the future. The property is located to the North West of Dewsbury town centre, and just 0.4 miles from the Dewsbury and District Hospital. Any purchasers choosing to buy without viewing in person are doing so at their own risk and acknowledge that the auctioneer will not be held responsible for any issues that may arise due to them being unintentionally missed from the video or sales particulars.

Tenure

Freehold

Charges and Payments

In addition to the deposit Administration Charge: 0.9% inc VAT of the purchase price subject to a minimum of £1,200 inc VAT. Disbursements: Any additional disbursements payable by the purchaser are yet to be confirmed by the vendor's solicitor. For more details please see the legal pack.

Guide Price

Guides are provided as an indication of each seller's minimum expectation. They are not necessarily figures which a property will sell for and may change at any time prior to the auction. Each property will be offered subject to a Reserve (a figure below which the Auctioneer cannot sell the property during the auction) which we expect will be set within the Guide Range or no more than 10% above a single figure Guide.

Local Authority

Kirklees Council

Important Notice to Prospective Buyers:

We draw your attention to the Special Conditions of Sale within the Legal Pack, referring to other charges in addition to the purchase price which may become payable. Such costs may include Search Fees, reimbursement of Sellers costs and Legal Fees, and Transfer Fees amongst others.

Additional Fees

Administration Charge - See above

Disbursements - Please see the legal pack for any disbursements listed that may become payable by the purchaser on completion.

View Larger Map

Disclaimer: The map preview provided above is for general guidance only and may not accurately reflect the exact location or surrounding buildings. Prospective buyers and interested parties are strongly advised to independently verify the precise location and surroundings before bidding.