For Sale By Auction | 14:00, 03 February 2021 | Lot 28

34-36 Rock Lane, Leeds, West Yorkshire, LS13 1DX

Sold £444,000

  • Semi-Detached House
  • 5 Bedrooms
  • Tenure: Freehold

Call the team on 0113 393 3482 for more information

Auction Date

Wed 03/02/2021

Auction Time

14:00

Auction Venue

Live Stream Auction

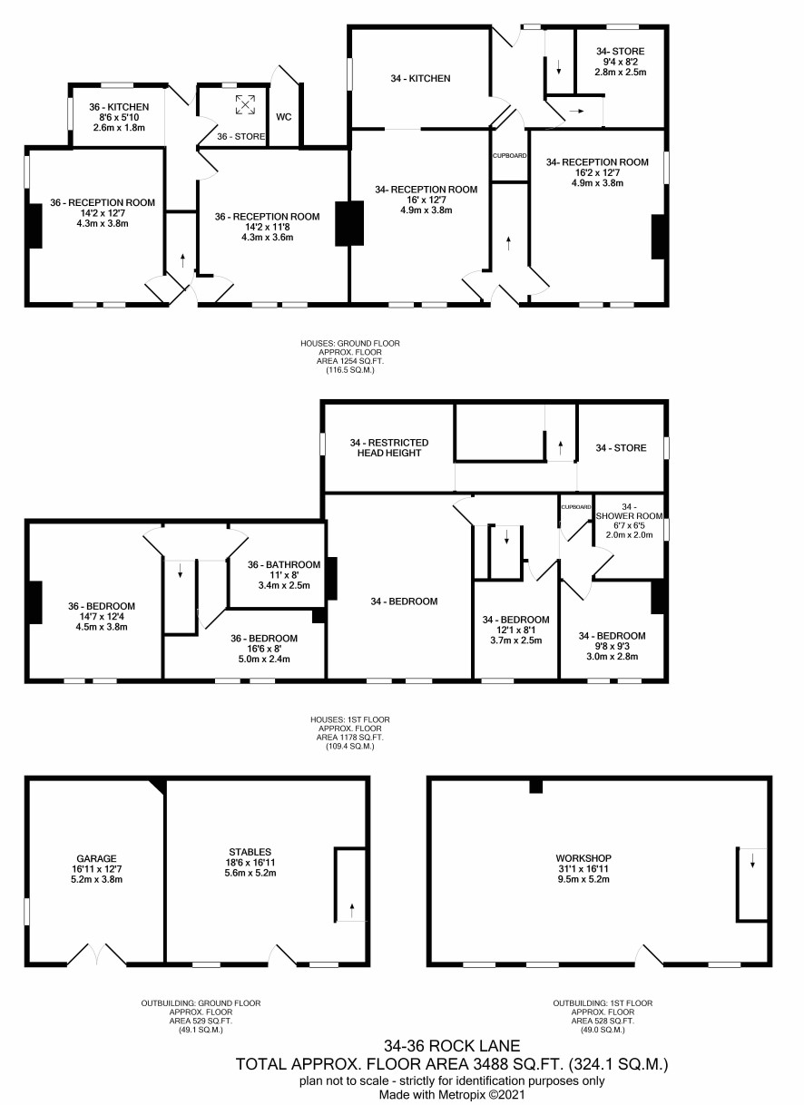
LOOKING FOR YOUR DREAM PROJECT? Sure to appeal to developers and those looking to create their 'home for life', comes this rare opportunity on the Rodley/Bramley border. The whole site, occupying approximately 0.7 acres, is on a single title therefore providing options for the developer. The main buildings are believed to date back to the early 18th century and are listed (Grade II). These could be fully refurbished to add value. 34 Rock Lane ? a three bedroom semi-detached property in need of refurbishment throughout. There are a number of undeveloped store rooms/cellars, accessed via the back door, that buyers may look to utilise. 36 Rock Lane ? a smaller dwelling with two bedrooms, two reception rooms in similar condition to 34. The outbuildings and gardens/land may also lend themselves to development especially as the neighbouring street, Moorland View, is a modern development. The two storey detached garage/workshop, at the rear of the site, offer another opportunity for development. Any changes will be subject to planning approval. Any purchasers choosing to buy without viewing in person are doing so at their own risk and acknowledge that the auctioneer will not be held responsible for any issues that may arise due to them being unintentionally missed from the video or sales particulars

Tenure

Freehold

Charges and Payments

In addition to the deposit Administration Charge: 0.9% inc VAT of the purchase price subject to a minimum of £1,200 inc VAT.

Local Authority

Leeds City Council

Important Notice to Prospective Buyers:

We draw your attention to the Special Conditions of Sale within the Legal Pack, referring to other charges in addition to the purchase price which may become payable. Such costs may include Search Fees, reimbursement of Sellers costs and Legal Fees, and Transfer Fees amongst others.

Additional Fees

Administration Charge - See above

Disbursements - Please see the legal pack for any disbursements listed that may become payable by the purchaser on completion.

View Larger Map

Disclaimer: The map preview provided above is for general guidance only and may not accurately reflect the exact location or surrounding buildings. Prospective buyers and interested parties are strongly advised to independently verify the precise location and surroundings before bidding.