For Sale By Auction | 12:00, 25 October 2023 | Lot 24

Apartment 318, Citispace West, 2 Leylands Road, Leeds, West Yorkshire LS2 7JS

Sold

  • Apartment
  • 1 Bedroom

Call the team on 0113 393 3482 for more information

Auction Date

Wed 25/10/2023

Auction Time

12:00

Auction Venue

Live Stream

Located in Leeds city centre comes this compact one bedroom third floor apartment. The accommodation comprises a living kitchen, bedroom area and shower room. Positioned in 'Citispace West', there is a lift to all floors and residents have use of a roof garden at the centre of the development. The unit is well presented, has electric heating, double glazing and benefits from an additional security door to each floor requiring fob access. Lease - 100 years remaining on the lease

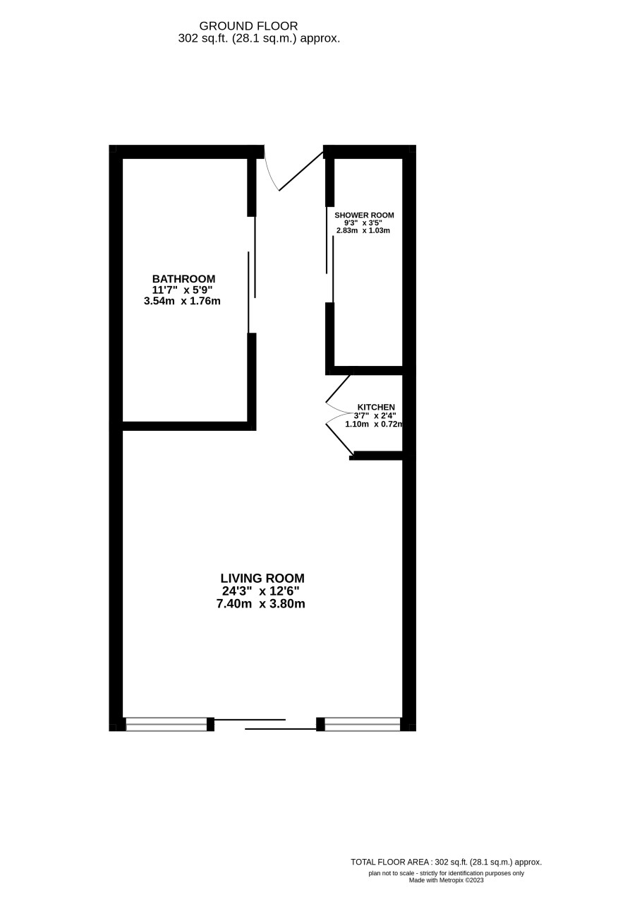
Ground Floor

Living room/kitchen, bedroom and shower room.

ADDITIONAL INFORMATION

Council Tax

Band A.

Tenure

Leasehold.

Charges & Payments

In addition to the deposit Administration Charge: 0.9% inc VAT of the purchase price subject to a minimum of £1,500 inc VAT. Buyer's Premium: £1,140 inc VAT.

Important Notice to Prospective Buyers:

We draw your attention to the Special Conditions of Sale within the Legal Pack, referring to other charges in addition to the purchase price which may become payable. Such costs may include Search Fees, reimbursement of Sellers costs and Legal Fees, and Transfer Fees amongst others.

Additional Fees

Administration Charge - See above

Disbursements - Please see the legal pack for any disbursements listed that may become payable by the purchaser on completion.

View Larger Map

Disclaimer: The map preview provided above is for general guidance only and may not accurately reflect the exact location or surrounding buildings. Prospective buyers and interested parties are strongly advised to independently verify the precise location and surroundings before bidding.