For Sale By Auction | 12:00, 25 October 2023 | Lot 23

33 Moorside Road, Drighlington, Bradford, West Yorkshire BD11 1ER

Sold

  • Semi-Detached House
  • 3 Bedrooms

Call the team on 0113 393 3482 for more information

Auction Date

Wed 25/10/2023

Auction Time

12:00

Auction Venue

Live Stream

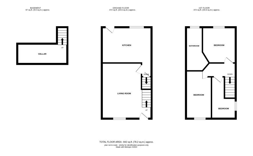
This three bedroom semi detached house is in good condition and ready to move into. The property comprises a kitchen diner and living room at ground floor level. A cellar for storage in the basement. To the first floor are three bedrooms and a bathroom. To the rear is an enclosed garden/yard area. The property has on street parking. The house is a village located in Drighlington which is in between Bradford and Leeds. It has excellent links to the motorways and local amenities.

Lower ground floor

Basement

Ground floor

Living room, kitchen

First floor

3 bedroom and bathroom

Externally

Gardens to front and rear, on street parking

Additional Information

Council Tax

Leeds council - tax band B

Tenure

Freehold

Charges and Payments

In addition to the deposit Administration Charge: 0.9% inc VAT of the purchase price subject to a minimum of £1,500 inc VAT. Search Fees: £240 inc VAT.

Important Notice to Prospective Buyers:

We draw your attention to the Special Conditions of Sale within the Legal Pack, referring to other charges in addition to the purchase price which may become payable. Such costs may include Search Fees, reimbursement of Sellers costs and Legal Fees, and Transfer Fees amongst others.

Additional Fees

Administration Charge - See above

Disbursements - Please see the legal pack for any disbursements listed that may become payable by the purchaser on completion.

View Larger Map

Disclaimer: The map preview provided above is for general guidance only and may not accurately reflect the exact location or surrounding buildings. Prospective buyers and interested parties are strongly advised to independently verify the precise location and surroundings before bidding.