For Sale By Auction | 12:00, 25 October 2023 | Lot 22

41 Swinnow Gardens, Leeds, West Yorkshire LS13 4PH

Sold

  • Terraced House
  • 3 Bedrooms

Call the team on 0113 393 3482 for more information

Auction Date

Wed 25/10/2023

Auction Time

12:00

Auction Venue

Live Stream

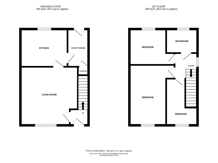
This well-proportioned three bedroom end townhouse is located in Swinnow, situated in a convenient location just a short drive from the centres of Pudsey and Bramley as well as being within commuting distance of Leeds City Centre. The property comprises a living room, kitchen and utility room at ground floor. To the first floor are three bedrooms and a bathroom. Externally there is a reasonable sized front and rear garden with on street parking to the front. We have been advised the tenants have given notice and will be vacating on the 3rd December, for further informaiton please see the advisory note in the legal pack. Any interested parties should be aware that we understand the property is non standard construction and believe it is Myton construction. Buyers are advised to do their own research in this regard prior to bidding.

Ground floor

Lounge, kitchen, utility

First floor

Three bedrooms, bathroom

Additional Information

Council Tax

Leeds city council - Tax band A

Tenure

Freehold

Charges and Payments

In addition to the deposit Administration Charge: 0.9% inc VAT of the purchase price subject to a minimum of £1,500 inc VAT. Search Fees: £240 Inc VAT

Important Notice to Prospective Buyers:

We draw your attention to the Special Conditions of Sale within the Legal Pack, referring to other charges in addition to the purchase price which may become payable. Such costs may include Search Fees, reimbursement of Sellers costs and Legal Fees, and Transfer Fees amongst others.

Additional Fees

Administration Charge - See above

Disbursements - Please see the legal pack for any disbursements listed that may become payable by the purchaser on completion.

View Larger Map

Disclaimer: The map preview provided above is for general guidance only and may not accurately reflect the exact location or surrounding buildings. Prospective buyers and interested parties are strongly advised to independently verify the precise location and surroundings before bidding.