Sold Prior | Lot 19

85 Carlton Street, Castleford , West Yorkshire WF10 1BP

Sold Prior

  • Retail Property (high street)

Call the team on 0113 393 3482 for more information

Auction Date

Wed 11/09/2024

Auction Time

12:00

Auction Venue

Live Stream

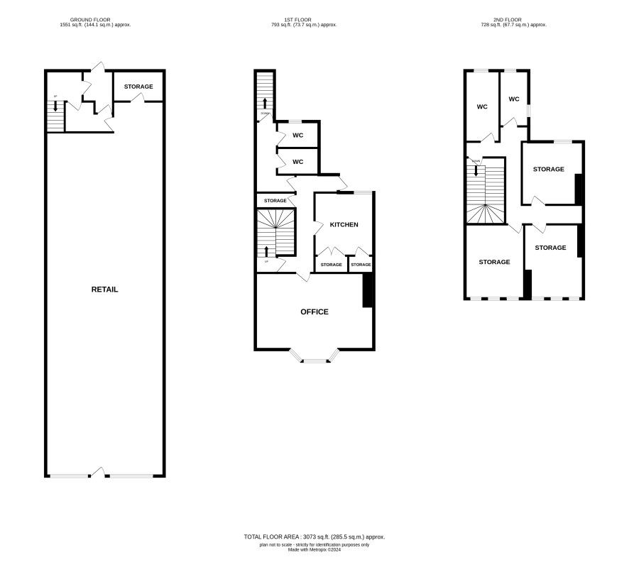
This substantial commercial premises is sure to appeal to any investors looking for a high yielding addition to their portfolio. Currently let on a 5 year FRI lease to Yorkshire Building Society from the 6th January 2023 and generating £23,000 per annum. This equates to an impressive return of 12% when based on the quoted guide price. The property comprises a ground floor retail premises with offices, kitchen, WC's and storage rooms to the upper floors. It is located on Carlton Lane in the pedestrianised heart of Castleford town centre just 0.2 miles from the local train station. On inspection we noticed some internal cracking on the second floor. Having now made further enquires we have been advised that they were first noticed 24 years ago and neither the seller, their agent or the tenant are aware of any further movement that has taken place since then.

Ground Floor

Retail unit and storage room

First Floor

Office, kitchen, two x WCs and storage room

Second Floor

Storage rooms and two x WCs

Additional Information

Tenure

Freehold

Charges and Payments

In addition to the deposit Administration Charge: 0.9% inc VAT of the purchase price subject to a minimum of £1,500 inc VAT.

Important Notice to Prospective Buyers:

We draw your attention to the Special Conditions of Sale within the Legal Pack, referring to other charges in addition to the purchase price which may become payable. Such costs may include Search Fees, reimbursement of Sellers costs and Legal Fees, and Transfer Fees amongst others.

Additional Fees

Administration Charge - See above

Disbursements - Please see the legal pack for any disbursements listed that may become payable by the purchaser on completion.

View Larger Map

Disclaimer: The map preview provided above is for general guidance only and may not accurately reflect the exact location or surrounding buildings. Prospective buyers and interested parties are strongly advised to independently verify the precise location and surroundings before bidding.