For Sale By Auction | 12:00, 11 September 2024 | Lot 20

53 Rillbank Lane, Leeds , West Yorkshire LS3 1HA

Sold

  • Terraced House
  • 2 Bedrooms

Call the team on 0113 393 3482 for more information

Auction Date

Wed 11/09/2024

Auction Time

12:00

Auction Venue

Live Stream

This is a two bedroom end terrace house which would be ideal for a buy to let landlord. The house is sold with vacant possession but would benefit from some cosmetic upgrades. The house benefits from an enclosed rear garden. It is located within Burley, a popular area one mile West of Leeds City Centre. It's only a 20 minute walk into central Leeds and 10 minute walk to Leeds University, making it a good rental area for students and professionals. It's in easy reach of bus routes, restaurants and supermarkets. Please be aware that we have been informed there potentially Japanese Knotweed close to the boundary. Buyers are advised to do their own research.

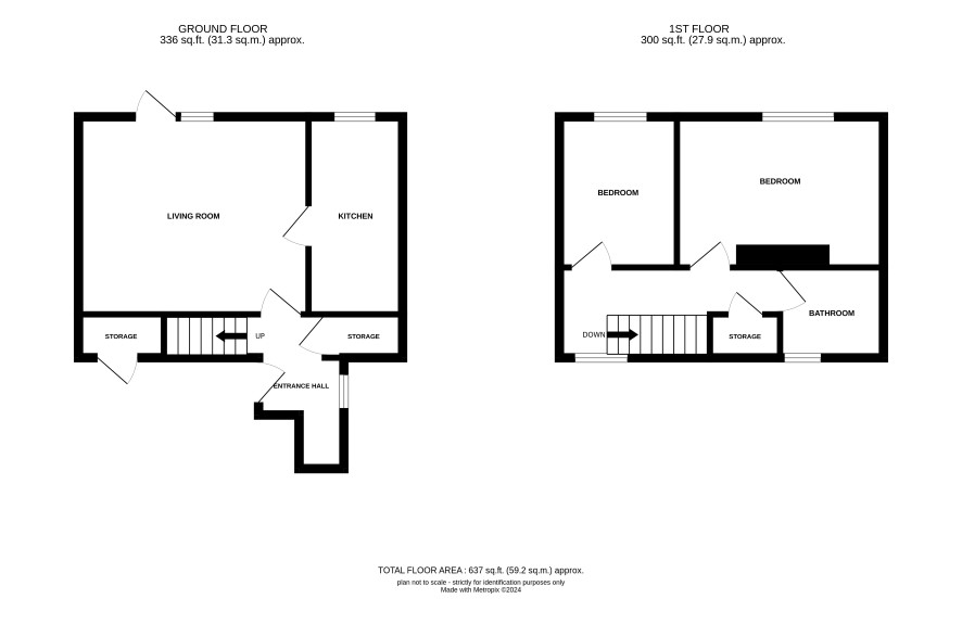
Ground Floor

Living room and kitchen.

First Floor

Two bedrooms and bathroom.

Externally

Rear garden.

Additional Information

Council Tax

Band A.

Tenure

Freehold

Charges & Payments

In addition to the deposit Administration Charge: 0.9% inc VAT of the purchase price subject to a minimum of £1,500 inc VAT. Searches £300 inc VAT

Important Notice to Prospective Buyers:

We draw your attention to the Special Conditions of Sale within the Legal Pack, referring to other charges in addition to the purchase price which may become payable. Such costs may include Search Fees, reimbursement of Sellers costs and Legal Fees, and Transfer Fees amongst others.

Additional Fees

Administration Charge - See above

Disbursements - Please see the legal pack for any disbursements listed that may become payable by the purchaser on completion.

View Larger Map

Disclaimer: The map preview provided above is for general guidance only and may not accurately reflect the exact location or surrounding buildings. Prospective buyers and interested parties are strongly advised to independently verify the precise location and surroundings before bidding.