For Sale By Auction | 12:00, 11 September 2024 | Lot 21

13 Moorwell Place, Bradford , West Yorkshire BD2 2EX

Sold

  • Terraced House
  • 4 Bedrooms

Call the team on 0113 393 3482 for more information

Auction Date

Wed 11/09/2024

Auction Time

12:00

Auction Venue

Live Stream

This is a four bedroom mid terrace house which is ideal for investors. It requires modernising throughout but benefits from a rear garden and faces onto the park. A similar property on the street, in good condition, sold in 2023 for £305,000. The house is located in Eccleshill, a suburb of Bradford situated 2.5 miles North East of the city centre. It is situated alongside Eccleshill recreation ground and is close to local amenities, schools and shops. Interested parties should be aware that some cracking was present within the property, however we understand this to be historic. Buyers are advised to do their own research in this regard. The property is Grade 2 listed and buyers are encouraged to research how this could affect refurbishment. Please note: a 14 day completion applies to this lot.

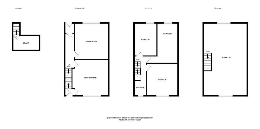
Lower Groud Floor

Cellar

Ground Floor

Living room, kitchen/diner

First Floor

Three bedrooms and a bathroom

Second Floor

Bedroom

Externally

Rear garden

Additional Information

Council Tax

Bradford - Band C

Tenure

Freehold

Charges and Payments

In addition to the deposit Administration Charge: 0.9% inc VAT of the purchase price subject to a minimum of £1,500 inc VAT. Buyer's Premium: £1,560 inc VAT.

Important Notice to Prospective Buyers:

We draw your attention to the Special Conditions of Sale within the Legal Pack, referring to other charges in addition to the purchase price which may become payable. Such costs may include Search Fees, reimbursement of Sellers costs and Legal Fees, and Transfer Fees amongst others.

Additional Fees

Administration Charge - See above

Disbursements - Please see the legal pack for any disbursements listed that may become payable by the purchaser on completion.

View Larger Map

Disclaimer: The map preview provided above is for general guidance only and may not accurately reflect the exact location or surrounding buildings. Prospective buyers and interested parties are strongly advised to independently verify the precise location and surroundings before bidding.