For Sale By Auction | 12:00, 03 September 2025 | Lot 22

Flat 3 Wortley Lodge, Gilpin Terrace , Leeds, West Yorkshire LS12 1HL

Sold After

  • Apartment
  • 1 Bedroom

Call the team on 0113 393 3482 for more information

Auction Date

Wed 03/09/2025

Auction Time

12:00

Auction Venue

Live Stream

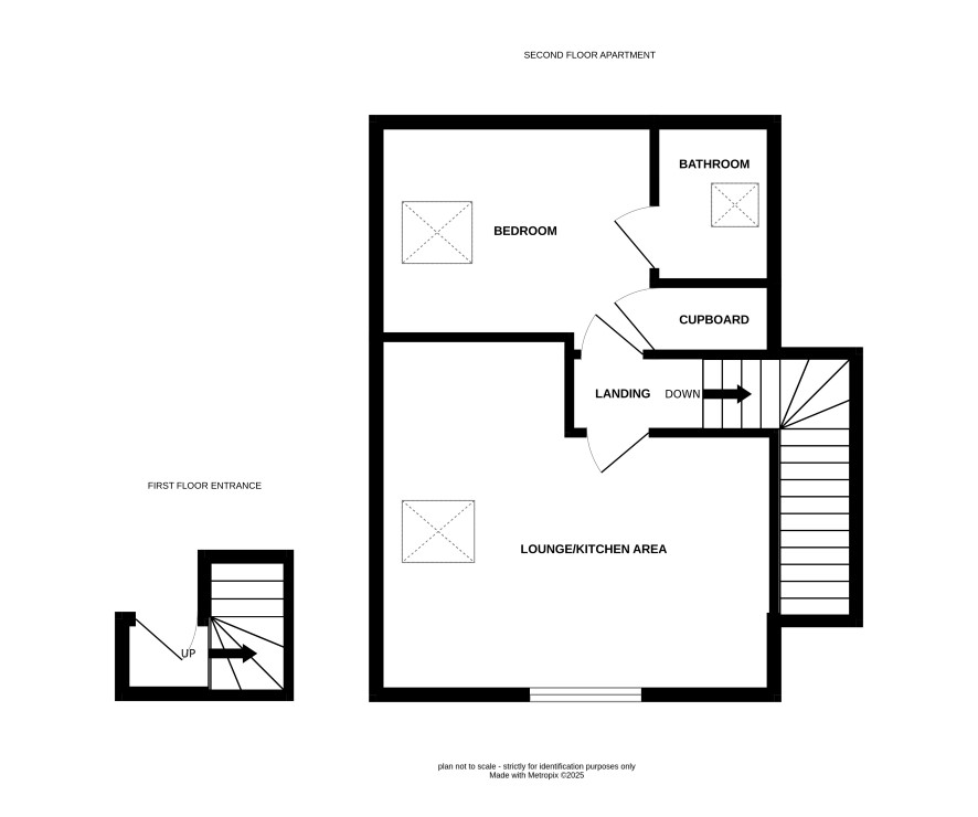
This one bedroom, second floor apartment is offered for sale via traditional auction and would make a great addition to a rental portfolio. Ideally located for commuting to Leeds city centre. Within easy reach of the ring road and Motorway networks. Leasehold information: Length of lease - 125 years from 11th February 2005 Ground Rent - £200 Per Annum Service Charge - £3,069.33 Per Annum. Please note: a 14 day completion applies to this lot.

Second Floor

Lounge/kitchen area, bedroom and bathroom

Additional Information

Council Tax

Leeds City Council - Band A

EPC Rating

G

Tenure

Leasehold

Disclaimer

Any information in relation to the length of lease, service charge, ground rent and council tax has been confirmed by our sellers. We advise buyers to make their own enquiries through their solicitors to verify that the information provided is accurate and not been subject to any change.

Charges and Payments

In addition to the deposit Administration Charge: 1.2% inc VAT of the purchase price subject to a minimum of £1,500 inc VAT. Buyer’s Premium: £1,200 inc VAT.

Important Notice to Prospective Buyers:

We draw your attention to the Special Conditions of Sale within the Legal Pack, referring to other charges in addition to the purchase price which may become payable. Such costs may include Search Fees, reimbursement of Sellers costs and Legal Fees, and Transfer Fees amongst others.

Additional Fees

Administration Charge - See above

Disbursements - Please see the legal pack for any disbursements listed that may become payable by the purchaser on completion.

View Larger Map

Disclaimer: The map preview provided above is for general guidance only and may not accurately reflect the exact location or surrounding buildings. Prospective buyers and interested parties are strongly advised to independently verify the precise location and surroundings before bidding.