For Sale By Auction | 12:00, 03 September 2025 | Lot 23

62 Wesley Street, Leeds, West Yorkshire LS11 8RA

Sold After

  • Semi-Detached House
  • 3 Bedrooms

Call the team on 0113 393 3482 for more information

Auction Date

Wed 03/09/2025

Auction Time

12:00

Auction Venue

Live Stream

This three bedroom semi detached property with rear garden is offered for sale via traditional auction. Whilst the property is in reasonable internal condition, a buyer could modernise further should they wish. This property would make a great family home, project or addition to a rental portfolio. Situated within close proximity to motorway links such as the M62 and M1 this makes an attractive purchase for the commuter. Good local primary and high schools are also close by making this home ideal for the growing family.

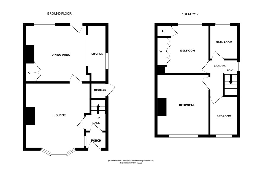
Ground Floor

Lounge and kitchen/diner

First Floor

Three bedrooms and a bathroom

Externally

Garden to the rear

Additional Information

Council Tax

Leeds City Council - Band B

EPC Rating

D

Tenure

Freehold

Charges and Payments

In addition to the deposit Administration Charge: 1.2% inc VAT of the purchase price subject to a minimum of £1,500 inc VAT. Searches £300 inc VAT,

Important Notice to Prospective Buyers:

We draw your attention to the Special Conditions of Sale within the Legal Pack, referring to other charges in addition to the purchase price which may become payable. Such costs may include Search Fees, reimbursement of Sellers costs and Legal Fees, and Transfer Fees amongst others.

Additional Fees

Administration Charge - See above

Disbursements - Please see the legal pack for any disbursements listed that may become payable by the purchaser on completion.

View Larger Map

Disclaimer: The map preview provided above is for general guidance only and may not accurately reflect the exact location or surrounding buildings. Prospective buyers and interested parties are strongly advised to independently verify the precise location and surroundings before bidding.