For Sale By Auction | 12:00, 22 October 2025 | Lot 73

52 Wilson Avenue, Mirfield, West Yorkshire WF14 9AT

*Guide | £95,000 (plus fees)

  • Semi-Detached House
  • 2 Bedrooms

Call the team on 0113 393 3482 for more information

Auction Date

Wed 22/10/2025

Auction Time

12:00

Auction Venue

Live Stream

This spacious two bedroom semi detached property with drive way and wrap around gardens is offered for sale via traditional auction. The property does require full renovation throughout, however would make a fantastic project or addition to a rental portfolio. Located in the highly sought-after town of Mirfield, a vibrant community offering an array of fantastic amenities, excellent transport links, and highly regarded local schooling.

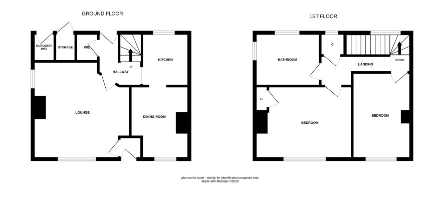
ACCOMMODATION

Ground Floor

Lounge, dining room, kitchen and W.C.

First Floor

Two bedrooms, kitchen, bathroom and storage.

First Floor

Driveway, front and rear gardens, store and W.C.

Externally

Driveway, front and rear gardens, external store and w/c.

ADDITIONAL INFORMATION

Council Tax

Band B.

EPC Rating

D

Tenure

Freehold.

Charges & Payments

In addition to the deposit Administration Charge: 1.2% inc VAT of the purchase price subject to a minimum of £1,500 inc VAT. Searches £300 inc VAT

Important Notice to Prospective Buyers:

We draw your attention to the Special Conditions of Sale within the Legal Pack, referring to other charges in addition to the purchase price which may become payable. Such costs may include Search Fees, reimbursement of Sellers costs and Legal Fees, and Transfer Fees amongst others.

Additional Fees

Administration Charge - See above

Disbursements - Please see the legal pack for any disbursements listed that may become payable by the purchaser on completion.

View Larger Map

Disclaimer: The map preview provided above is for general guidance only and may not accurately reflect the exact location or surrounding buildings. Prospective buyers and interested parties are strongly advised to independently verify the precise location and surroundings before bidding.