For Sale By Auction | 12:00, 22 October 2025

385 Harehills Lane, Leeds, West Yorkshire LS9 6AP

*Guide | £170,000 (plus fees)

  • Commercial Property

Call the team on 0113 393 3482 for more information

Auction Date

Wed 22/10/2025

Auction Time

12:00

Auction Venue

Live Stream

This commercial property in prominent Harehills lane location is offered for sale via traditional auction. The property has been occupied by St Gemma's Hospice since 1998 and is currently generating a gross rental income of £10,750 per annum with the current lease expiring on the 29th July 2030. This would make a great addition to a rental portfolio. The property is located on a busy parade in Harehills approximately two miles to the north east of Leeds city centre and is sure to be of interest to investors both locally and nationally. Please note due to the busyness of the shop floor, we were unable to provide a photo of this level.

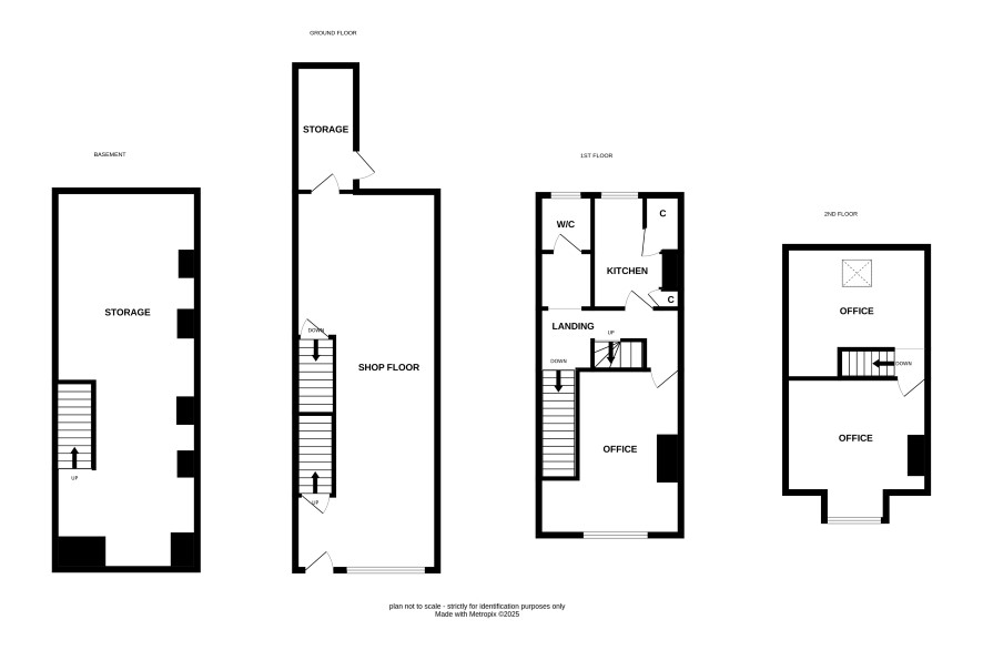
ACCOMMODATION

Lower Ground Floor

Storage.

Ground Floor

Shop floor and storage room.

First Floor

Office, w/c and kitchen.

Second Floor

Two offices.

Externally

Rear yard.

ADDITIONAL INFORMATION

EPC

Rating D.

Tenure

Freehold.

Charges & Payments

In addition to the deposit Administration Charge: 1.2% inc VAT of the purchase price subject to a minimum of £1,500 inc VAT.

Important Notice to Prospective Buyers:

We draw your attention to the Special Conditions of Sale within the Legal Pack, referring to other charges in addition to the purchase price which may become payable. Such costs may include Search Fees, reimbursement of Sellers costs and Legal Fees, and Transfer Fees amongst others.

Additional Fees

Administration Charge - See above

Disbursements - Please see the legal pack for any disbursements listed that may become payable by the purchaser on completion.

View Larger Map

Disclaimer: The map preview provided above is for general guidance only and may not accurately reflect the exact location or surrounding buildings. Prospective buyers and interested parties are strongly advised to independently verify the precise location and surroundings before bidding.