For Sale By Auction | 12:00, 22 October 2025 | Lot 53

47 Barlow Street, York, North Yorkshire YO26 5HS

*Guide | £155,000 (plus fees)

  • Terraced House
  • 2 Bedrooms

Call the team on 0113 393 3482 for more information

Auction Date

Wed 22/10/2025

Auction Time

12:00

Auction Venue

Live Stream

This two bedroom through terrace with rear yard is offered for sale via traditional auction. The property does require renovation, however would make a great project or addition to a rental portfolio. Please note the house next door, which is similar in layout, is currently listed on the open market for £265,000. Ideally situated in a sought after residential area, it's just a short walk from the vibrant amenities of Acomb Village, including shops, cafes and local services. Please be aware the property is showing signs of structural movement and buyers are advised to do their own research in this regard. Please note: a 14 day completion applies to this lot.

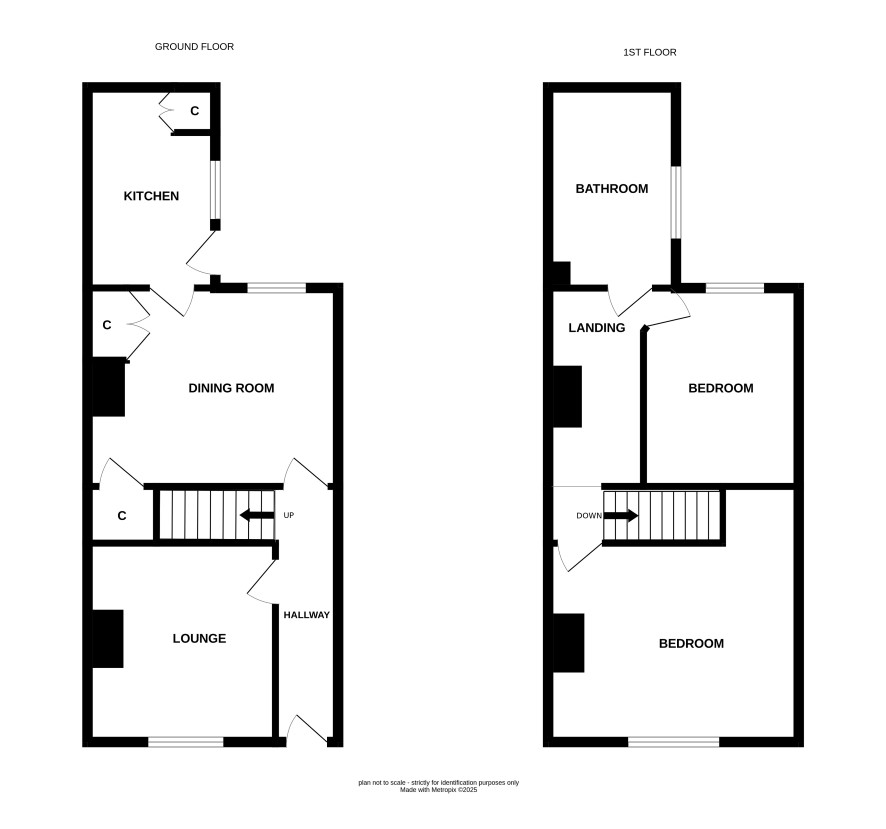
Ground Floor

Lounge, dining room and kitchen to the ground floor

First Floor

Two bedrooms and a bathroom

Externally

Back garden

Additional Information

Council Tax

North Yorkshire - Band B

EPC Rating

D

Tenure

Freehold

Charges and Payments

In addition to the deposit Administration Charge: 1.2% inc VAT of the purchase price subject to a minimum of £1,500 inc VAT. Buyer's Premium: £1,200 inc VAT.

Important Notice to Prospective Buyers:

We draw your attention to the Special Conditions of Sale within the Legal Pack, referring to other charges in addition to the purchase price which may become payable. Such costs may include Search Fees, reimbursement of Sellers costs and Legal Fees, and Transfer Fees amongst others.

Additional Fees

Administration Charge - See above

Disbursements - Please see the legal pack for any disbursements listed that may become payable by the purchaser on completion.

View Larger Map

Disclaimer: The map preview provided above is for general guidance only and may not accurately reflect the exact location or surrounding buildings. Prospective buyers and interested parties are strongly advised to independently verify the precise location and surroundings before bidding.