For Sale By Auction | 12:00, 10 December 2025 | Lot 14

92 High Street, New Sharlston, Wakefield, West Yorkshire WF4 1BE

*Guide | £85,000 (plus fees)

  • Terraced House
  • 3 Bedrooms

Call the team on 0113 393 3482 for more information

Auction Date

Wed 10/12/2025

Auction Time

12:00

Auction Venue

Live Stream

This three bedroom, end terrace house would be ideal for someone seeking to put their stamp on a home, or wanting to add to their investment portfolio. It’s sold with vacant possession, and requires modernisation throughout. There’s a good sized garden to the front and on street parking. It’s located in New Sharlston which is a rural village between Wakefield and Featherstone. There’s limited amenities within the village but shops, schools and amenities can be found within a 10 minute drive in nearby towns.

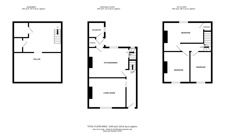
Lower Ground Floor

Cellar.

Ground Floor

Kitchen, living room and bathroom.

First Floor

Three bedrooms.

Externally

Garden.

Additional Information

Council Tax

Band A.

EPC

Rating F.

Tenure

Freehold.

Charges & Payments

In addition to the deposit Administration Charge: 1.2% inc VAT of the purchase price subject to a minimum of £1,500 inc VAT.

Important Notice to Prospective Buyers:

We draw your attention to the Special Conditions of Sale within the Legal Pack, referring to other charges in addition to the purchase price which may become payable. Such costs may include Search Fees, reimbursement of Sellers costs and Legal Fees, and Transfer Fees amongst others.

Additional Fees

Administration Charge - See above

Disbursements - Please see the legal pack for any disbursements listed that may become payable by the purchaser on completion.

View Larger Map

Disclaimer: The map preview provided above is for general guidance only and may not accurately reflect the exact location or surrounding buildings. Prospective buyers and interested parties are strongly advised to independently verify the precise location and surroundings before bidding.