For Sale By Auction | 12:00, 25 March 2026

80 Weavers Brook, Cumberland Close, Halifax, West Yorkshire HX2 8NF

*Guide | £83,000 (plus fees)

  • Terraced House
  • 3 Bedrooms

Call the team on 0113 393 3482 for more information

Auction Date

Wed 25/03/2026

Auction Time

12:00

Auction Venue

Live Stream

This three bedroom end terrace property is offered for sale via traditional auction. The property is currently tenanted generating a gross rental income of £7,800 which reflects a 9.4% gross yield return based on the guide price. This property would make a great addition to a rental portfolio. Located close to Halifax town centre offering a range of amenities with local shops, cafes and supermarkets as well as excellent transport links. Leasehold information: Lease length - 999 years from 1st January 2005 Ground Rent - £50 per annum Service Charge - Not Payable Please note that whilst Auction House has inspected the property and found it in average condition, the images provided are of when the house was vacant prior to the current tenant taking occupancy. Buyers should also be aware the property is attached to a block of apartments.

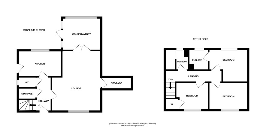
Ground Floor

Lounge, kitchen, conservatory, w/c and store.

First Floor

Three bedrooms, wet room and en-suite.

Externally

Front and rear gardens.

ADDITIONAL INFORMATION

Council Tax

Band A.

EPC

Rating D.

Tenure

Leasehold.

Disclaimer

Any information in relation to the length of lease, service charge, ground rent and council tax has been confirmed by our sellers. We advise buyers to make their own enquiries through their solicitors to verify that the information provided is accurate and not been subject to any change.

Charges & Payments

In addition to the deposit Administration Charge: 1.5% inc VAT of the purchase price subject to a minimum of £2,100 inc VAT. Searches £360 inc VAT

Important Notice to Prospective Buyers:

We draw your attention to the Special Conditions of Sale within the Legal Pack, referring to other charges in addition to the purchase price which may become payable. Such costs may include Search Fees, reimbursement of Sellers costs and Legal Fees, and Transfer Fees amongst others.

Additional Fees

Administration Charge - See above

Disbursements - Please see the legal pack for any disbursements listed that may become payable by the purchaser on completion.

View Larger Map

Disclaimer: The map preview provided above is for general guidance only and may not accurately reflect the exact location or surrounding buildings. Prospective buyers and interested parties are strongly advised to independently verify the precise location and surroundings before bidding.