For Sale By Auction | 14:00, 23 October 2019 | Lot 30

708 / 708A King Lane, Alwoodley, Leeds, LS17 7AW

Sold £270,000

  • Retail Property (high street)
  • Tenure: Freehold

Call the team on 0113 393 3482 for more information

Auction Date

Wed 23/10/2019

Auction Time

14:00

Auction Venue

Norman Hunter Banqueting Suite Elland Road Stadium, Leeds, LS11 0ES

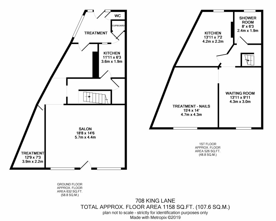
Sure to appeal to any investors looking to add to a portfolio, this two storey retail unit is currently let to an established tenant producing £14,000pa. The FRI lease commenced in March 2017 with a rent review due at the end of year 3. As well as the salon, kitchen, shower room and multiple treatment rooms, a garage to the rear of the property is also included as part of the sale. The property is located on an established parade in Alwoodley, one of North Leeds most popular suburbs. Please note that this property is being sold by a member of staff at Auction House or a staff member's family or an associate.

Tenure

Freehold

Ground Floor

Salon, two treatment rooms, wc and kichenette.

First Floor

Treatment room, waiting room, shower room and kitchen.

Externally

The property has a garage to the rear.

Charges & Payments

In addition to the deposit Administration Charge: 0.6% inc VAT of the purchase price subject to a minimum of £1,080.00 inc VAT. Disbursements: Any additional disbursements payable by the purchaser are yet to be confirmed by the vendors solicitor. For more details please see the legal pack.

Guide Price

Guides are provided as an indication of each seller's minimum expectation. They are not necessarily figures which a property will sell for and may change at any time prior to the auction. Each property will be offered subject to a Reserve (a figure below which the Auctioneer cannot sell the property during the auction) which we expect will be set within the Guide Range or no more than 10% above a single figure Guide.

Local Authority

Leeds City Council

Important Notice to Prospective Buyers:

We draw your attention to the Special Conditions of Sale within the Legal Pack, referring to other charges in addition to the purchase price which may become payable. Such costs may include Search Fees, reimbursement of Sellers costs and Legal Fees, and Transfer Fees amongst others.

Additional Fees

Administration Charge - See above

Disbursements - Please see the legal pack for any disbursements listed that may become payable by the purchaser on completion.

View Larger Map

Disclaimer: The map preview provided above is for general guidance only and may not accurately reflect the exact location or surrounding buildings. Prospective buyers and interested parties are strongly advised to independently verify the precise location and surroundings before bidding.