Postponed | Lot 31

5 Swaine Hill Terrace, Yeadon, Leeds, West Yorkshire, LS19 7HD

Postponed

  • Terraced House
  • 4 Bedrooms
  • Tenure: Freehold

Call the team on 0113 393 3482 for more information

Auction Date

Wed 23/10/2019

Auction Time

14:00

Auction Venue

Norman Hunter Banqueting Suite Elland Road Stadium, Leeds, LS11 0ES

Viewing Times:

Fri 11 Oct

14:15-14:40

Wed 16 Oct

14:45-15:10

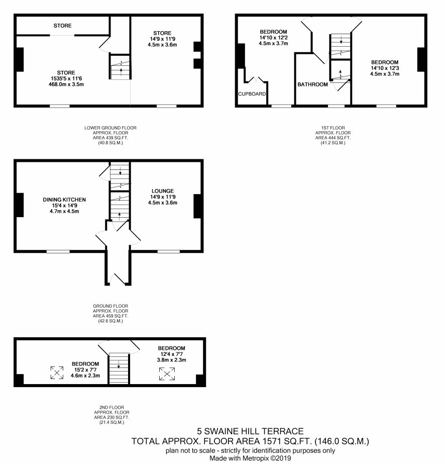
This four bedroom back to back terrace in Yeadon is a sizeable project for an investor/builder. The property occupies an enviable position, overlooking the local green, and is now in need of a full scheme of refurbishment. Currently, the two bedrooms on the second floor are accessed via the bathroom on the first floor. Buyers should look to relocate the bathroom and reconfigure the first floor layout to overcome this. The property also has two large cellar rooms which could be converted into additional living space. Externally, there is a garden to the front and on street parking. The property will be sold as seen with all contents, fixtures and fittings included.

Tenure

Freehold

Lower Ground Floor

Three cellar rooms

Ground Floor

Hall, lounge and dining kitchen

First Floor

Landing, two bedrooms and bathroom

Second Floor

Two bedrooms

Externally

Garden to front

Charges and Payments

In addition to the deposit Administration Charge: 0.6% inc VAT of the purchase price subject to a minimum of £1,080 inc VAT. Search Fees: £200 Inc VAT

Local Authority

Leeds City Council

Important Notice to Prospective Buyers:

We draw your attention to the Special Conditions of Sale within the Legal Pack, referring to other charges in addition to the purchase price which may become payable. Such costs may include Search Fees, reimbursement of Sellers costs and Legal Fees, and Transfer Fees amongst others.

Additional Fees

Administration Charge - See above

Disbursements - Please see the legal pack for any disbursements listed that may become payable by the purchaser on completion.

View Larger Map

Disclaimer: The map preview provided above is for general guidance only and may not accurately reflect the exact location or surrounding buildings. Prospective buyers and interested parties are strongly advised to independently verify the precise location and surroundings before bidding.