For Sale By Auction | 13:00, 08 November 2023 | Lot 8

49-51 Aylesbury Street, Fenny Stratford, Milton Keynes, Buckinghamshire, MK2 2BQ

*Guide | £775,000 - £850,000 (plus fees)

  • Residential Development
  • Tenure: Freehold

Call the team on 01908 030127 for more information

Auction Date

Wed 08/11/2023

Auction Time

13:00

Auction Venue

Livestream

Viewing Times:

Sat 28 Oct

By appointment only

Sat 4 Nov

By appointment only

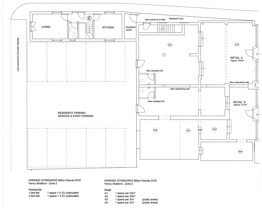
A chance to purchase a re-development opportunity offering two commercial units on the ground floor, four apartments to the first floor and a duplex with its own access to the side.

This development is attractively located in the middle of Fenny Stratford with a prominent high street position. The property currently offers approximately 4,250 sq ft of internal floor space with on-site parking for 10 vehicles. Full Planning has been approved.

Tenure

Freehold

PLANNING PERMISSION

Planning permission has been granted to redevelop this site to provide two retail units on the ground floor and five apartments on the first floor with one apartment benefiting from ground-floor access and accommodation. The planning also presents off-road parking for 10 vehicles. Milton Keynes Planning Application number: 17/02377 FUL and Ref. No: 22/01059/CLUE

COMMERCIAL UNITS

Unit 49 - 925 sq ft / 86 sq m Unit 51 - 1,119 sq ft / 104 sq m Each Unit has the potential to generate a rental income of £25,000 p.a. This is generated from similar comparables in this location. Based upon each unit generating a 6.67% yield the total value stands at £750,000.

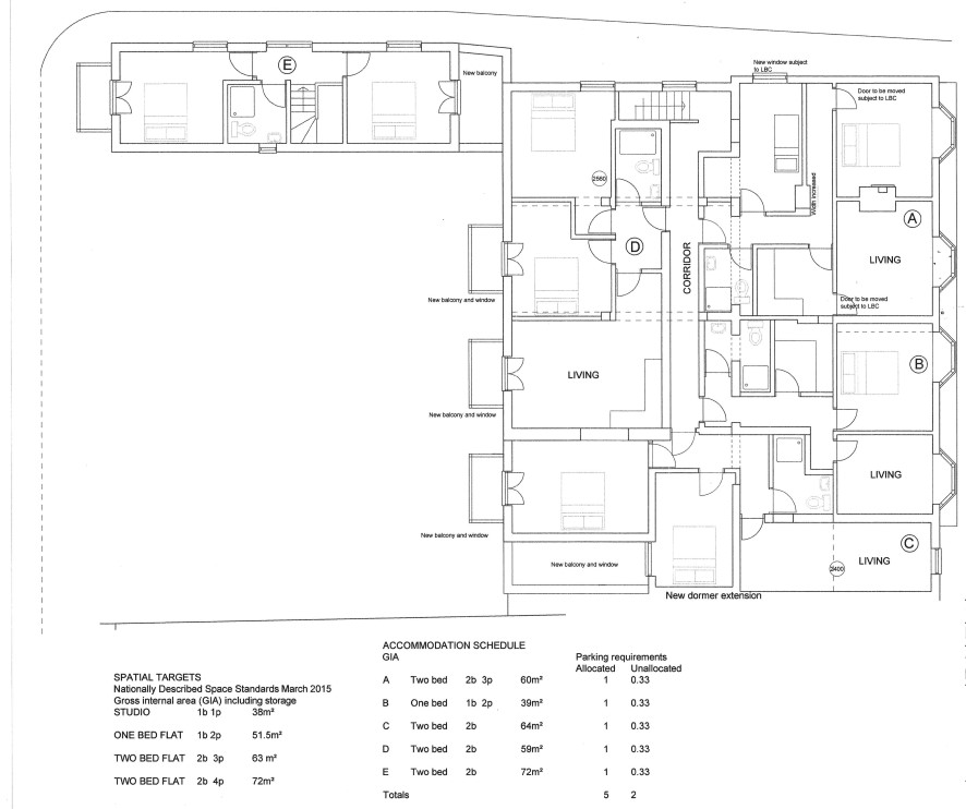
APARTMENTS

The first floor presents approximately 1,750 sq ft / 162 sqm of accommodation. The new apartments consist of four two-beds and a single-bedroom flat. Based on recent comparables the GDV can be determined at £935,000.

PARKING

The planning permission presents off-road parking spaces for 10 vehicles.

RATEABLE VALUE

The current rateable value of the existing property is £28,250.

COSTED SCHEDULE OF DEVELOPMENT

The current owners have generated a schedule of costs to develop the site at a figure of £564,000. This figure can fluctuate and is based on professional opinion

Local Authority

Milton Keynes Council

Important Notice to Prospective Buyers:

We draw your attention to the Special Conditions of Sale within the Legal Pack, referring to other charges in addition to the purchase price which may become payable. Such costs may include Search Fees, reimbursement of Sellers costs and Legal Fees, and Transfer Fees amongst others.

Additional Fees

Buyer's Premium - The purchaser will be required to pay a buyers premium charge of £6,000 (£5,000 plus VAT)

Administration Charge - The purchaser will be required to pay an administration charge of £900 (£750 plus VAT).

Disbursements - Please see the legal pack for any disbursements listed that may become payable by the purchaser on completion.

View Larger Map

Disclaimer: The map preview provided above is for general guidance only and may not accurately reflect the exact location or surrounding buildings. Prospective buyers and interested parties are strongly advised to independently verify the precise location and surroundings before bidding.