For Sale By Auction | 12:00, 30 May 2024 | Lot 14

240 Moss Bay Road, Workington, Cumbria CA14 3TN

Sold £61,000

  • Terraced House
  • 2 Bedrooms
  • Tenure: See Legal Pack

Call the team on 01228 510 552 for more information

Auction Date

Thu 30/05/2024

Auction Time

12:00

Auction Venue

The Halston Hotel, 20-34 Warwick Road • CA1 1AB

Viewing Times:

Sat 11 May

10:00-10:30

Thu 16 May

17:30-17:45

Sat 25 May

10:00-10:15

Good investment property

A two bedroomed terraced house with first floor bathroom. This is a good investment property with sitting room, dining kitchen, two bedrooms and bathroom.

Tenure

See Legal Pack

What3words location ///tools.they.wash

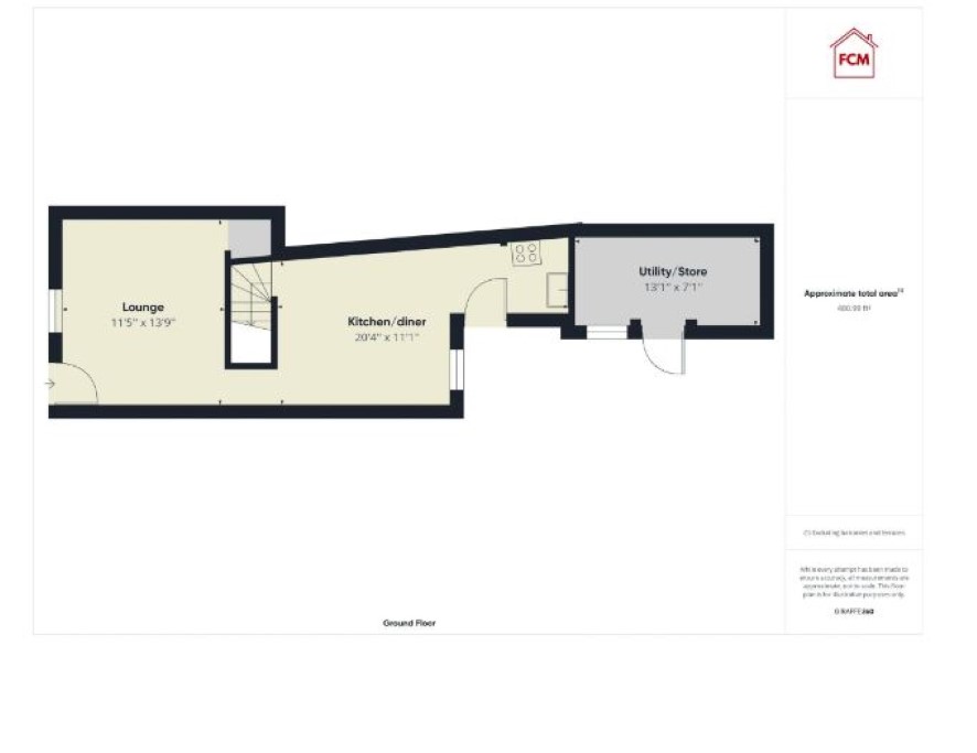
Ground Floor

Sitting Room 13'6 x 11'3 Dining Kitchen 12'3 x 11'3 + recess

First Floor

Front Bedroom 11'6 x 10'6 Rear Bedroom 12'6 x 6' approx Bathroom 5'9 x 5'6

Outside

Rear yard

Energy Efficiency Rating (EPC)

Current Rating C

Services

Interested parties are invited to make their own enquiries to the relevant authorities as to the availability of the services.

Local Authority

Allerdale Borough Council

Solicitors

Milburns Solicitors, Ref: Megan Robinson

Offered in association with

First Choice Move

Important Notice to Prospective Buyers:

We draw your attention to the Special Conditions of Sale within the Legal Pack, referring to other charges in addition to the purchase price which may become payable. Such costs may include Search Fees, reimbursement of Sellers costs and Legal Fees, and Transfer Fees amongst others.

Additional Fees

Administration Charge - £1200 inc VAT payable on exchange of contracts.

Disbursements - Please see the legal pack for any disbursements listed that may become payable by the purchaser on completion.

View Larger Map

Disclaimer: The map preview provided above is for general guidance only and may not accurately reflect the exact location or surrounding buildings. Prospective buyers and interested parties are strongly advised to independently verify the precise location and surroundings before bidding.