Withdrawn

Old Natwest Bank, adj Land, 2a & 2b Queen Street, Ulverston, Cumbria LA12 7AF

Withdrawn

  • Mixed Use
  • Tenure: See Legal Pack

Call the team on 01228 510 552 for more information

Auction Date

Thu 30/05/2024

Auction Time

12:00

Auction Venue

The Halston Hotel, 20-34 Warwick Road • CA1 1AB

Viewing Times:

Thu 9 May

15:00-15:45

Sat 18 May

11:30-12:00

Wed 22 May

15:00-15:30

Wed 29 May

11:30-12:00

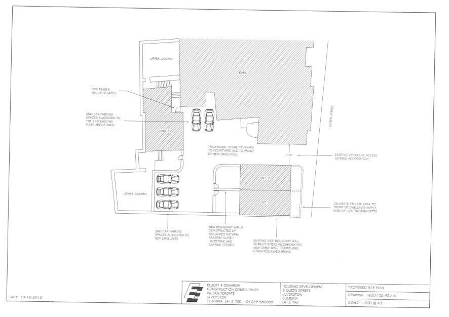
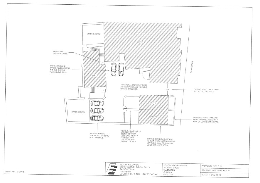
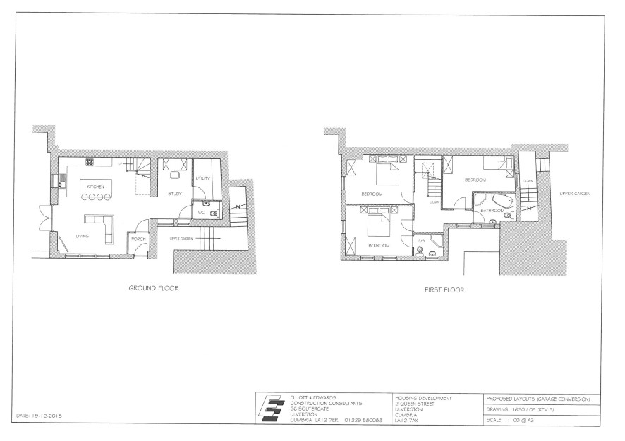
Development Opportunity plus tenanted apartments

Town centre development land with lapsed planning permission for 2 x 4 bedroom town houses with road frontage and a 3 bedroom detached house to the rear. Planning ref: SL/2018/0571 and SL/2018/0572. Imposing town centre Grade II listed building comprising of a vacant banking hall, basement and ancillery rooms offering development potential subject to the necessary planning approvals for either residential or commercial use. Exclusive generous sized apartments to the first and second floor including allocated parking spaces. Currently tenanted to long standing tenants producing an income of circa £30,000 pa.

Tenure

See Legal Pack

Land adj to Old Natwest Bank

Town centre development land with lapsed planning permission for 2 x 4 bedroom town houses with road frontage and a 3 bedroom detached house to the rear. Planning ref: SL/2018/0571 and SL/2018/0572.

Old Natwest Bank, 2a & 2b Queen Street

Imposing town centre Grade II listed building comprising of a vacant banking hall, basement and ancillery rooms offering development potential subject to the necessary planning approvals for either residential or commercial use. Exclusive generous sized apartments to the first and second floor including allocated parking spaces. Currently tenanted to long standing tenants producing an income of circa £30,000 pa. The land adjacent is also being offered in the auction with a Guide Price of £150,000+. The lots will be offered as individual lots and then as a combined lot.

Important Information

Lot 17 & Lot 18, will be offered initially as two separate lots and then as one combined lot. This is done by offering the separate lots as private auction lots which allows me to park the highest bids then offer the combined lot. Subject to the reserve being met if the bid for the combined lot is equal or in excess of the individual lots, it will be sold to that bidder. Or if the total of the bids on the individual lots are the highest they will be sold in that way.

Services

Interested parties are invited to make their own enquiries to the relevant authorities as to the availability of the services.

Local Authority

South Lakeland District Council

Solicitors

Progression Solicitors, 11 Queen Street, Ref: Anthony Smith, Tel: 01229 580956

Important Notice to Prospective Buyers:

We draw your attention to the Special Conditions of Sale within the Legal Pack, referring to other charges in addition to the purchase price which may become payable. Such costs may include Search Fees, reimbursement of Sellers costs and Legal Fees, and Transfer Fees amongst others.

Additional Fees

Administration Charge - £1200 inc VAT payable on exchange of contracts.

Disbursements - Please see the legal pack for any disbursements listed that may become payable by the purchaser on completion.

View Larger Map

Disclaimer: The map preview provided above is for general guidance only and may not accurately reflect the exact location or surrounding buildings. Prospective buyers and interested parties are strongly advised to independently verify the precise location and surroundings before bidding.