Postponed | Lot 38

11 Exeter Road, Ipswich, Suffolk, IP3 8JL

Postponed

  • Semi-Detached House
  • 3 Bedrooms
  • Tenure: Freehold

Call the team on 01473 558 888 for more information

Auction Date

Thu 05/12/2019

Auction Time

14:00

Auction Venue

The Wolsey Room Holiday Inn, London Road, Ipswich, IP2 0UA

Viewing Times:

Tue 19 Nov

12:00-12:30

Mon 25 Nov

10:00-10:30

Thu 28 Nov

12:00-12:30

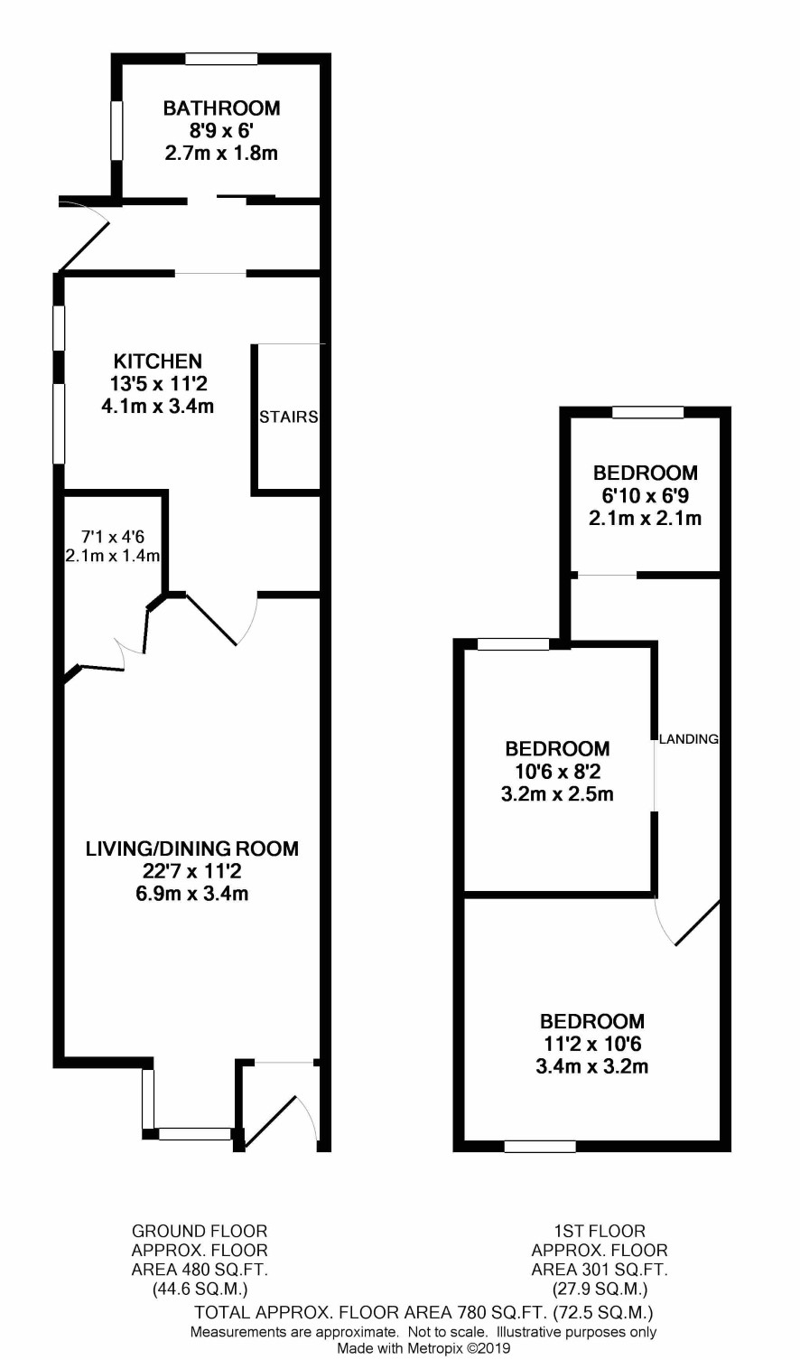
A Victorian semi with garage in 200 ft plot and requiring full modernisation

Situated in a desirable east Ipswich location is this Victorian semi detached house requiring full modernisation. The property offers three bedroom accommodation with tremendous potential and plenty of scope to extend as can be seen with the adjoining semi. The overall plot extends to around 210 ft in depth by 30 ft width and also benefits from a garage and further parking space. Ideally suited to a developer or investor and priced particularly competitively for the auction market, this is without doubt a rare opportunity which should not be overlooked.

Tenure

Freehold

Note

The gardens are majorly overgrown and contain a considerable amount of building materials, rubble etc. and two vehicles, the property is being SOLD AS SEEN and clearance will be the responsibility of the purchaser.

Energy Efficiency Rating (EPC)

Current Rating - please refer to Legal Pack

Services

Interested parties are requested to make their own enquiries to the relevant authorities as to the availability of services.

Local Authority

Ipswich Borough Council

Solicitors

Attwells Solicitors LLP, Sun Buildings, 35-37 Princes Street, Ipswich, IP1 1PU, Ref: Tanya Warnes, Tel: 01473 229857

Important Notice to Prospective Buyers:

We draw your attention to the Special Conditions of Sale within the Legal Pack, referring to other charges in addition to the purchase price which may become payable. Such costs may include Search Fees, reimbursement of Sellers costs and Legal Fees, and Transfer Fees amongst others.

Additional Fees

Administration Charge - 0.3% inc VAT of the purchase price, subject to a minimum of £900 inc VAT, payable on exchange of contracts.

Disbursements - Please see the legal pack for any disbursements listed that may become payable by the purchaser on completion.

View Larger Map

Disclaimer: The map preview provided above is for general guidance only and may not accurately reflect the exact location or surrounding buildings. Prospective buyers and interested parties are strongly advised to independently verify the precise location and surroundings before bidding.