For Sale By Auction | 11:00, 12 February 2020 | Lot 2

2A Upper Olland Street, Bungay, Norfolk, NR35 1BG

Sold £43,800

  • Flat
  • 1 Bedroom
  • Tenure: Leasehold

Call the team on 01603 505 100 for more information

Auction Date

Wed 12/02/2020

Auction Time

11:00

Auction Venue

The Sunningdale Suite Dunston Hall Hotel, Ipswich Road, Norwich, NR14 8PQ

Viewing Times:

Fri 17 Jan

10:00-10:45

Fri 24 Jan

10:00-10:30

Fri 31 Jan

10:00-10:30

Fri 7 Feb

10:00-10:30

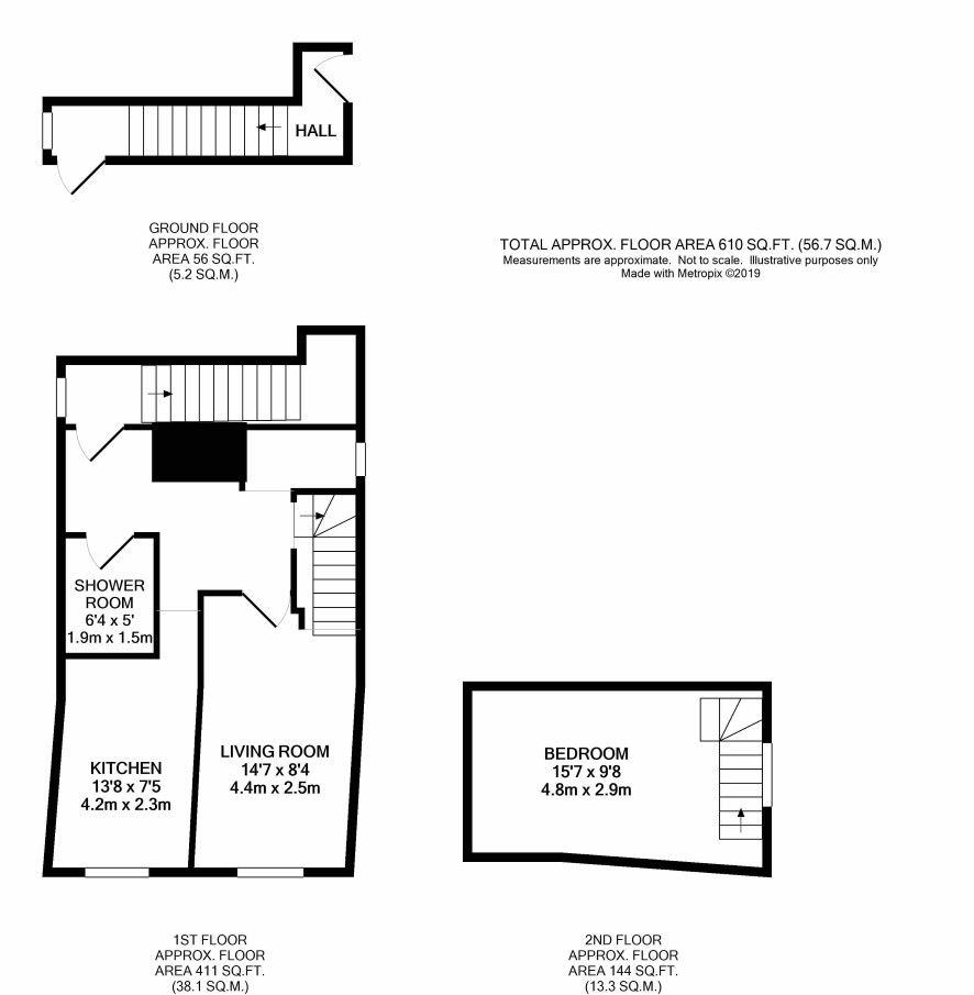
One bedroom town centre duplex apartment currently let producing £395 pcm (£4,740 pa)

This one bedroom duplex apartment is situated within a Grade II listed building close to the town centre. The apartment is let on an AST to a tenant who is currently holding over and paying a rent of £395 per calendar month £4,740 per annum. The property has electric heating, a recently refitted shower room and is ideal for the experienced buy to let investor. Bungay has a wealth of shops and community facilities and public transport to all major local centres.

Tenure

Leasehold

Accommodation

Shared hall, private entrance lobby, lounge, kitchen, shower room

Second Floor

Double bedroom.

Lease Details

Length - 999 years from 10th February 2006 Ground Rent - Peppercorn Service Charge - One third of the Service Costs (see Legal Pack for further information).

Services

Interested parties are requested to make their own enquiries to the relevant authorities as to the availability of services.

Local Authority

Waveney District Council

Solicitors

Allens Cadge & Gilbert, 9 High Street, Loddon, NR15 1BZ, Ref: Kelly Coleman, Tel: 01508 520361

Important Notice to Prospective Buyers:

We draw your attention to the Special Conditions of Sale within the Legal Pack, referring to other charges in addition to the purchase price which may become payable. Such costs may include Search Fees, reimbursement of Sellers costs and Legal Fees, and Transfer Fees amongst others.

Additional Fees

Buyer's Premium - £420 inc VAT payable on exchange of contracts.

Administration Charge - 0.3% inc VAT of the purchase price, subject to a minimum of £900 inc VAT, payable on exchange of contracts.

Disbursements - Please see the legal pack for any disbursements listed that may become payable by the purchaser on completion.

View Larger Map

Disclaimer: The map preview provided above is for general guidance only and may not accurately reflect the exact location or surrounding buildings. Prospective buyers and interested parties are strongly advised to independently verify the precise location and surroundings before bidding.