For Sale By Auction | 11:00, 12 February 2020 | Lot 1

2A May Road, Lowestoft, Suffolk, NR32 2DL

Sold £76,000

  • Terraced House
  • 3 Bedrooms
  • Tenure: Freehold

Call the team on 01603 505 100 for more information

Auction Date

Wed 12/02/2020

Auction Time

11:00

Auction Venue

The Sunningdale Suite Dunston Hall Hotel, Ipswich Road, Norwich, NR14 8PQ

Viewing Times:

Wed 22 Jan

13:45-14:15

Wed 29 Jan

13:45-14:15

Fri 31 Jan

16:00-16:30

Wed 5 Feb

13:45-14:15

A three bedroom mid terrace house requires updating

This terrace house has been let for a number of years however will now be sold with vacant possession. It is in need of a full refurbishment program and is ideal for a builder or investor being within walking distance of the town centre amenities. Public transport including rail services are also available nearby.

Tenure

Freehold

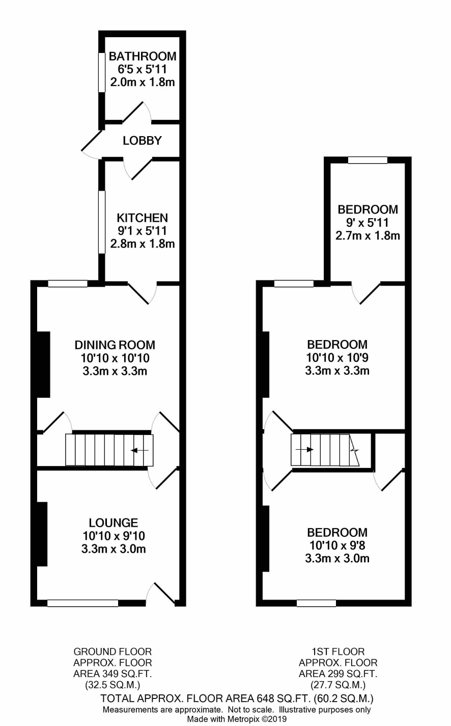
Ground Floor

Lounge, dining room, kitchen, bathroom

First Floor

Small landing, 3 bedrooms

Outside

Front garden, courtyard style rear garden.

Energy Efficiency Rating (EPC)

Current Rating E

Services

Interested parties are requested to make their own enquiries to the relevant authorities as to the availability of services.

Local Authority

Waveney District Council

Solicitors

Fosters, 17 Clapham Road South, Lowestoft, NR32 1PG, Ref: Nicola Bundey, Tel: 01502 503307

Important Notice to Prospective Buyers:

We draw your attention to the Special Conditions of Sale within the Legal Pack, referring to other charges in addition to the purchase price which may become payable. Such costs may include Search Fees, reimbursement of Sellers costs and Legal Fees, and Transfer Fees amongst others.

Additional Fees

Buyer's Premium - £900 inc VAT payable on exchange of contracts.

Administration Charge - 0.3% inc VAT of the purchase price, subject to a minimum of £900 inc VAT, payable on exchange of contracts.

Disbursements - Please see the legal pack for any disbursements listed that may become payable by the purchaser on completion.

View Larger Map

Disclaimer: The map preview provided above is for general guidance only and may not accurately reflect the exact location or surrounding buildings. Prospective buyers and interested parties are strongly advised to independently verify the precise location and surroundings before bidding.