For Sale By Auction | 11:00, 03 June 2020 | Lot 12

Lydney House, Norwich Road, Swaffham, Norfolk, PE37 7QS

Sold £450,000

  • Hotel
  • 12 Bedrooms
  • Tenure: Freehold

Call the team on 01603 505 100 for more information

Auction Date

Wed 03/06/2020

Auction Time

11:00

Auction Venue

ONLINE

An elegant and imposing Grade II Listed detached Georgian town house currently a highly respected guest house - Retirement Sale

Located in the popular and well served market town of Swaffham this impressive and highly desirable building has been run successfully by the current owners as small Hotel/Guest House for many years. There are currently 12 bedrooms (11 en suite), various function rooms, kitchens, office, cellarage and storage rooms the owners currently live on site using three of the second floor bedrooms. The building has parking for approximately 18 cars and formal garden areas and terracing. The building may now suit conversion into a private residence or other facility subject to appropriate planning permission being granted. The accommodation extends over three floors and there is a spacious vaulted cellar and a range of useful storage rooms. The professional kitchen is well stocked and the building is located a few minutes walk from the historic market place.

Tenure

Freehold

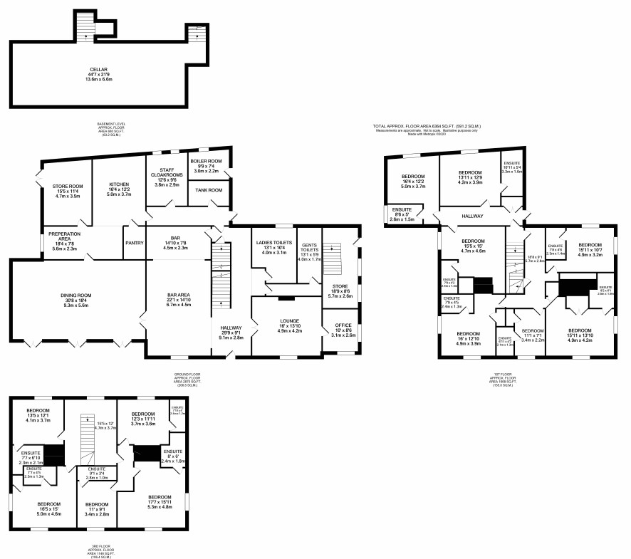
Ground Floor

Reception hall, residents lounge, office, bar area, function room, kitchen, preparation room, store, ladies and gents toilets, access to large vaulted cellar

First Floor

Landing, 6 bedrooms (all en-suite), box room

Second Floor

Landing 5 bedrooms (all en suite) 3 of the bedrooms are currently used as owners living accommodation

Outside

Broad front garden with lawns formal terraced areas and side garden, parking for up to 18 cars, In and out driveway. To the rear are currently open fields.

Business Rates

The business rateable value from April 2017 is £8,000

Services

Interested parties are requested to make their own enquiries to the relevant authorities as to the availability of services.

Local Authority

Breckland Council

Solicitors

Hayes & Storr, Burnham House, 57-63 Station Road, Sheringham, NR26 8RG, Ref: Richard Hewitt, Tel: 01263 825959

Important Notice to Prospective Buyers:

We draw your attention to the Special Conditions of Sale within the Legal Pack, referring to other charges in addition to the purchase price which may become payable. Such costs may include Search Fees, reimbursement of Sellers costs and Legal Fees, and Transfer Fees amongst others.

Additional Fees

Administration Charge - 0.3% inc VAT of the purchase price, subject to a minimum of £954 inc VAT, payable on exchange of contracts.

Disbursements - Please see the legal pack for any disbursements listed that may become payable by the purchaser on completion.

View Larger Map

Disclaimer: The map preview provided above is for general guidance only and may not accurately reflect the exact location or surrounding buildings. Prospective buyers and interested parties are strongly advised to independently verify the precise location and surroundings before bidding.