For Sale By Auction | 11:00, 09 September 2020 | Lot 10

50 Chapelfield Gardens, Coburg Street, Norwich, Norfolk, NR1 3BF

Sold £150,000

  • Flat
  • 1 Bedroom
  • Tenure: Leasehold

Call the team on 01603 505 100 for more information

Auction Date

Wed 09/09/2020

Auction Time

11:00

Auction Venue

ONLINE

A spacious purpose built city centre apartment with underground parking

A highly desirable first floor apartment in central Norwich within a few steps of the Theatre Royal, Chapelfield Gardens, the city centre shops and market place. The property, which is in good order throughout, is currently let on an assured short-hold basis for £695 pcm (£8,340 pa). In addition the parking space is let for an additional £95 pcm (£1,140 pa) providing a total income of £9,480 pa. The property has new real wood flooring, a security entry system and is fully double glazed with gas central heating.

Tenure

Leasehold

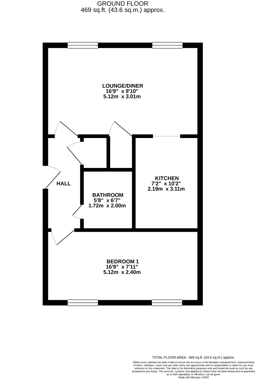
Ground Floor

Shared entrance hall and staircase to first floor

First Floor

Door to private hall, lounge/diner, kitchen, double bedroom, bathroom

Outside

Communal gardens. Underground secure parking space.

Lease details

Term: 99 years from 25th December 2006 Ground Rent and Service Charge: Approximately £1,400 per annum

Viewings

Open viewings are scheduled for Tuesday 18 & Wednesday 26 August and Thursday 3 September - APPOINTMENT ESSENTIAL - please contact the Norwich office on 01603 505100 to be allocated a time slot on these specific viewing days

Energy Efficiency Rating (EPC)

Current Rating B

Services

Interested parties are requested to make their own enquiries to the relevant authorities as to the availability of services.

Local Authority

Norwich City Council

Solicitors

Leathes Prior, 74 The Close, Norwich, NR1 4DR, Ref: Stephen Wilson, Tel: 01603 281012

Important Notice to Prospective Buyers:

We draw your attention to the Special Conditions of Sale within the Legal Pack, referring to other charges in addition to the purchase price which may become payable. Such costs may include Search Fees, reimbursement of Sellers costs and Legal Fees, and Transfer Fees amongst others.

Additional Fees

Administration Charge - 0.3% inc VAT of the purchase price, subject to a minimum of £954 inc VAT, payable on exchange of contracts.

Disbursements - Please see the legal pack for any disbursements listed that may become payable by the purchaser on completion.

View Larger Map

Disclaimer: The map preview provided above is for general guidance only and may not accurately reflect the exact location or surrounding buildings. Prospective buyers and interested parties are strongly advised to independently verify the precise location and surroundings before bidding.