Sold Prior | Lot 27

153, 153A, 154, 154A Bells Road, Gorleston, Great Yarmouth, Norfolk, NR31 6AN

Sold Prior

  • Mixed Use
  • Tenure: Freehold

Call the team on 01603 505 100 for more information

Auction Date

Wed 09/09/2020

Auction Time

11:00

Auction Venue

ONLINE

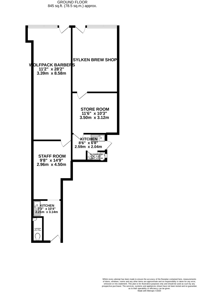
Investment opportunity for two retail units and two flats

An investment opportunity to acquire these two retail premises with two residential flats located above. Currently all let producing £14,628 per annum. We are advised the flats are in need of some refurbishment, although one has recently had a new boiler fitted and one is in better condition throughout. The retail units are currently operating as a home brew shop and a barbers.

Tenure

Freehold

Retail Units

Both retail premises cover 845sq/ft.

Flats

Flat 153A (not inspected)

Hall, stairs leading to first floor, lounge, kitchen, two bedrooms, bathroom, garden.

Flat 154A (not inspected)

Hall, stairs leading to first floor, lounge, kitchen, bedroom 1, bathroom, garden.

Outside

Pedestrian access leading to rear derelict workshop.

Energy Efficiency Rating (EPC)

Current Rating D

Services

Interested parties are requested to make their own enquiries to the relevant authorities as to the availability of services.

Local Authority

Great Yarmouth Borough Council

Solicitors

Norton Legal, Unit 8 Beech Avenue, Taverham, Norwich, NR8 6HW, Ref: Tracy Guest, Tel: (01603) 864331

Important Notice to Prospective Buyers:

We draw your attention to the Special Conditions of Sale within the Legal Pack, referring to other charges in addition to the purchase price which may become payable. Such costs may include Search Fees, reimbursement of Sellers costs and Legal Fees, and Transfer Fees amongst others.

Additional Fees

Administration Charge - 0.3% inc VAT of the purchase price, subject to a minimum of £954 inc VAT, payable on exchange of contracts.

Disbursements - Please see the legal pack for any disbursements listed that may become payable by the purchaser on completion.

View Larger Map

Disclaimer: The map preview provided above is for general guidance only and may not accurately reflect the exact location or surrounding buildings. Prospective buyers and interested parties are strongly advised to independently verify the precise location and surroundings before bidding.