For Sale By Auction | 11:00, 09 September 2020 | Lot 28

98 North Denes Road, Great Yarmouth, NR30 4LN

Sold £150,000

  • Terraced House
  • 4 Bedrooms
  • Tenure: Freehold

Call the team on 01603 505 100 for more information

Auction Date

Wed 09/09/2020

Auction Time

11:00

Auction Venue

ONLINE

Four bedroom hall entrance terrace requiring updating

This spacious bay fronted terrace house is to be sold vacant and now in need of updating and redecoration. The property has gas central heating, sealed unit double glazing and a private rear garden. The house would be ideal for investment or owner occupation. The property is pleasantly situated in a popular part of the town within walking distance of the sea front and approximately half a mile from the town centre.

Tenure

Freehold

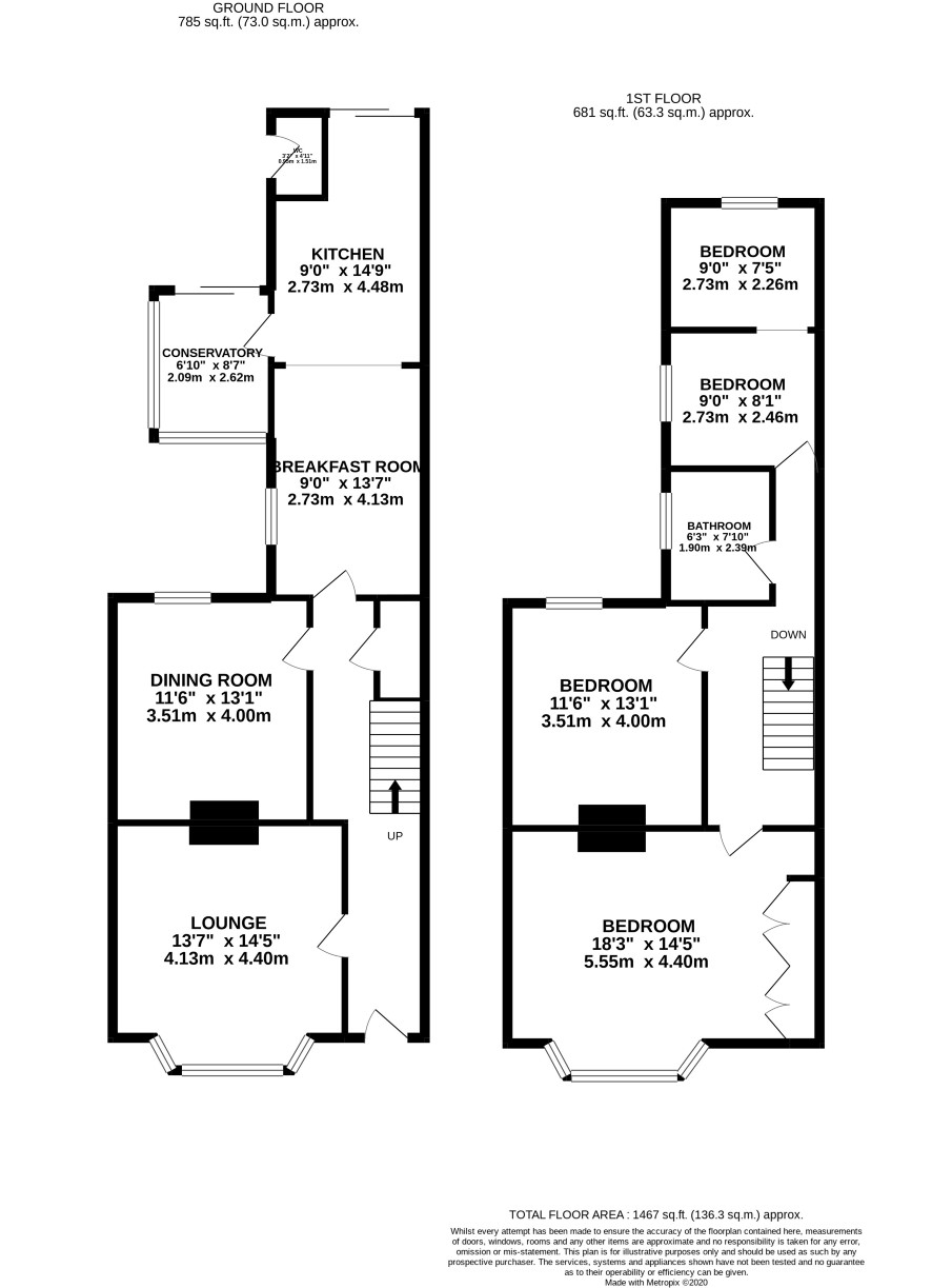
Ground Floor

Hall, lounge, dining room, kitchen/breakfast room, conservatory

First Floor

Landing, four bedrooms (bedroom 3 and 4 interconnected), bathroom

Outside

Small front garden, sheltered private rear garden with rear pedestrian access. Outside wc.

Viewing

Open viewings are scheduled - the next Wednesday 2nd September - APPOINTMENT ESSENTIAL - please contact the Norwich office on 01603 505100 to be allocated a time slot on this specific viewing day

Energy Efficiency Rating (EPC)

Current Rating D

Services

Interested parties are requested to make their own enquiries to the relevant authorities as to the availability of services.

Local Authority

Great Yarmouth Borough Council

Solicitors

England & Co, 137 Bells Road, Gorleston, Great Yarmouth, NR31 6AG, Ref: Lorna Anderson, Tel: 01493 604990

Important Notice to Prospective Buyers:

We draw your attention to the Special Conditions of Sale within the Legal Pack, referring to other charges in addition to the purchase price which may become payable. Such costs may include Search Fees, reimbursement of Sellers costs and Legal Fees, and Transfer Fees amongst others.

Additional Fees

Administration Charge - 0.3% inc VAT of the purchase price, subject to a minimum of £954 inc VAT, payable on exchange of contracts.

Disbursements - Please see the legal pack for any disbursements listed that may become payable by the purchaser on completion.

View Larger Map

Disclaimer: The map preview provided above is for general guidance only and may not accurately reflect the exact location or surrounding buildings. Prospective buyers and interested parties are strongly advised to independently verify the precise location and surroundings before bidding.