For Sale By Auction | 11:00, 09 September 2020 | Lot 21

3 The Entry, Diss, Suffolk, IP22 4NT

Sold After

  • Semi-Detached House
  • 6 Bedrooms
  • Tenure: Freehold

Call the team on 01603 505 100 for more information

Auction Date

Wed 09/09/2020

Auction Time

11:00

Auction Venue

ONLINE

6 bedroom period house requiring update in Conservation Area

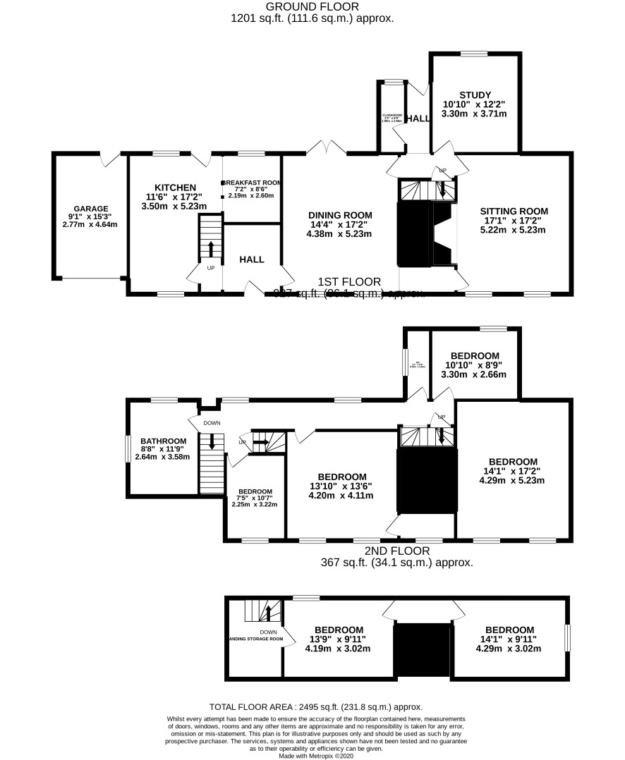
This impressive period property is to be offered with vacant possession and in need of updating and redecoration. The house has been in the same family ownership for many years and includes many attractive and noteworthy features including inglenook fireplaces and exposed beams. The accommodation which covers three floors includes three reception rooms, a kitchen/ breakfast room and ground floor cloakroom whilst on the upper two floors are six bedrooms, a family bathroom and separate w.c. Diss town centre shops are within a short walk of the property and the town benefits from a wealth of community facilities all levels of schools and a railway station that links the town with all major local centres and London Liverpool Street

Tenure

Freehold

Ground Floor

Hall, sitting room, dining room, study, kitchen/breakfast room, cloakroom, rear hall

First Floor

Landing, four bedrooms, bathroom, separate w.c.

Second Floor

Landing room, two bedrooms

Outside

Front garden with lawn and shrubs, side driveway to attached single garage. Private rear garden also with lawn, useful brick out building

Viewings

Open viewings are being scheduled APPOINTMENT ESSENTIAL please contact the Norwich office on 01603 505100 to be allocated a time slot on the next viewing day

Energy Efficiency Rating (EPC)

Current Rating E

Services

Interested parties are requested to make their own enquiries to the relevant authorities as to the availability of services.

Local Authority

Waveney District Council

Solicitors

Ronald Fletcher Baker, 77a Baker Street, London, W1V 6RF, Ref: Yasaman Asaad, Tel: 0207 467 75757

Important Notice to Prospective Buyers:

We draw your attention to the Special Conditions of Sale within the Legal Pack, referring to other charges in addition to the purchase price which may become payable. Such costs may include Search Fees, reimbursement of Sellers costs and Legal Fees, and Transfer Fees amongst others.

Additional Fees

Administration Charge - 0.3% inc VAT of the purchase price, subject to a minimum of £954 inc VAT, payable on exchange of contracts.

Disbursements - Please see the legal pack for any disbursements listed that may become payable by the purchaser on completion.

View Larger Map

Disclaimer: The map preview provided above is for general guidance only and may not accurately reflect the exact location or surrounding buildings. Prospective buyers and interested parties are strongly advised to independently verify the precise location and surroundings before bidding.