Postponed | Lot 20

Mill House Farm, Thetford Road, South Lopham, Diss, IP22 2HW

Postponed

  • Detached House
  • 4 Bedrooms
  • Tenure: Freehold

Call the team on 01603 505 100 for more information

Auction Date

Wed 09/09/2020

Auction Time

11:00

Auction Venue

ONLINE

Delightful detached farmhouse in need of complete renovation situated in approximately 2.5 acres (STMS)

Mill House Farm is a delightful detached farmhouse situated in approximately 2.5 acres (STMS). Now in need of complete renovation it has in the past had PP to be extended, however this has now lapsed. The property has retained many original features to be enhanced in restoration, and is located on the outskirts of the South Norfolk village of South Lopham which is twixt Diss and Thetford. The property is set back from the road and the driveway provides access to an additional detached property. Offering four bedrooms,ensuite and family bathroom, three reception rooms and an extension providing a large dining room and kitchen. The grounds and more formal gardens are extensive and there is a small dwelling within the grounds that was formerly a piggery, this has latterly been rented out for several years, and with the necessary planning/lawful certificate to be gained offers further opportunity. There are a number of nissen huts, a greenhouse, a timber framed garage and open cart lodge also situated within the grounds, providing great storage and further development scope (subject to necessary planning). This is a fantastic opportunity for those looking for a project.

Tenure

Freehold

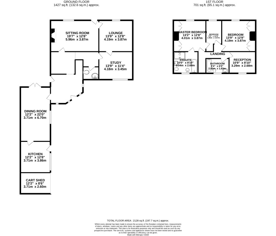
Ground floor:

Entrance hall, boiler room, sitting room, lounge, study, inner hall, cloakroom, dining room, kitchen

First floor:

Landing, master bedroom with ensuite, connecting dressing room/bedroom 4, two further bedrooms and family bathroom

Outside

Large driveway, timber framed garage and open cart shed. To the rear of the property there are extensive formal gardens and situated to the west side a larger field housing a number of nissen huts, greenhouse and a further dwelling (which has been rented out for a number of years). However, planning would need to be investigated.

Viewings

Open viewings can be scheduled - the next are Friday 4 September - APPOINTMENT ESSENTIAL please contact the Norwich office on 01603 505100 to be allocated a time slot on the next viewing day

Energy Efficiency Rating (EPC)

Current Rating D

Services

Interested parties are requested to make their own enquiries to the relevant authorities as to the availability of services.

Local Authority

Breckland Council

Solicitors

Norton Legal, Unit 8 Beech Avenue, Taverham, Norwich, NR8 6HW, Ref: Tracy Guest, Tel: (01603) 864331

Important Notice to Prospective Buyers:

We draw your attention to the Special Conditions of Sale within the Legal Pack, referring to other charges in addition to the purchase price which may become payable. Such costs may include Search Fees, reimbursement of Sellers costs and Legal Fees, and Transfer Fees amongst others.

Additional Fees

Administration Charge - 0.3% inc VAT of the purchase price, subject to a minimum of £954 inc VAT, payable on exchange of contracts.

Disbursements - Please see the legal pack for any disbursements listed that may become payable by the purchaser on completion.

View Larger Map

Disclaimer: The map preview provided above is for general guidance only and may not accurately reflect the exact location or surrounding buildings. Prospective buyers and interested parties are strongly advised to independently verify the precise location and surroundings before bidding.