Sold Prior | Lot 26

Holborn House, Newton Road, Castle Acre, King's Lynn, Norfolk, PE32 2AX

Sold Prior

  • Semi-Detached House
  • 3 Bedrooms
  • Tenure: Freehold

Call the team on 01733 889833 for more information

Auction Date

Tue 08/12/2020

Auction Time

11:00

Auction Venue

Livestream Auction

Semi detached cottage requiring modernisation

Located in the popular North Norfolk village of Castle Acre this three bedroom semi-detached cottage now requires a program of updating and redecoration to realise its full potential. The property has a wealth of period features including inglenook fireplace, exposed beams and brickwork. The property benefits from off road parking for several vehicles and a private rear garden which also requires attention. Castle Acre benefits from an attractive North Norfolk location within easy travelling distance of the North Norfolk coast, and is approximately 3 miles north of Swaffham where there are a comprehensive range of shops and amenities.

Tenure

Freehold

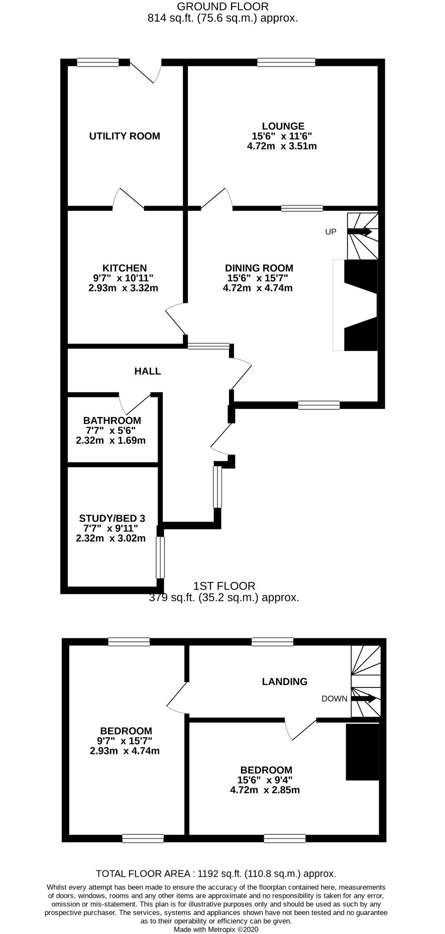
Ground Floor

Hall, lounge, dining room, kitchen, utility room, study/bedroom 3, bathroom

First Floor

Landing, 2 bedrooms

Outside

Front garden providing off road parking and outside store. Private rear garden

Viewings

Viewings can be arranged - the next are on Tuesday 10 and Friday 13 November - APPOINTMENT IS ESSENTIAL. Call the Kings Lynn office on 01553 777 773 to book a slot on the next viewing day.

Energy Efficiency Rating (EPC)

Current Rating E

Services

Interested parties are requested to make their own enquiries to the relevant authorities as to the availability of services.

Local Authority

Kings Lynn and West Norfolk Borough Council

Solicitors

Ward Gethin Archer, 11 London Street, Swaffham, PE37 7BW, Ref: Philip Hasler, Tel: 01760 727019

Important Notice to Prospective Buyers:

We draw your attention to the Special Conditions of Sale within the Legal Pack, referring to other charges in addition to the purchase price which may become payable. Such costs may include Search Fees, reimbursement of Sellers costs and Legal Fees, and Transfer Fees amongst others.

Additional Fees

Administration Charge - 0.3% inc VAT of the purchase price, subject to a minimum of £954 inc VAT, payable on exchange of contracts.

Disbursements - Please see the legal pack for any disbursements listed that may become payable by the purchaser on completion.

View Larger Map

Disclaimer: The map preview provided above is for general guidance only and may not accurately reflect the exact location or surrounding buildings. Prospective buyers and interested parties are strongly advised to independently verify the precise location and surroundings before bidding.