For Sale By Auction | 11:00, 08 December 2020 | Lot 19

16 Fakenham Road, Morton On The Hill, Norwich, Norfolk, NR9 5SP

Sold £180,000

  • Cottage
  • 3 Bedrooms
  • Tenure: Freehold

Call the team on 01603 505 100 for more information

Auction Date

Tue 08/12/2020

Auction Time

11:00

Auction Venue

Livestream Auction

Three bedroom detached cottage requiring refurbishment Set in around a quarter of an acre plot

This three bedroom period detached cottage is in need of a program of modernisation and improvement. It has been in the same ownership for over forty years and is now to be sold with vacant possession. It has a range of period features including exposed beams and benefits from oil fired central heating. The gardens extend to approximately 0.23 of an acre (stms) and have fine views over open farmland to the rear.The location also offers good transport links. The project would be ideal for a private individual, builder or developer and once modernised could be a wonderful home. The property is located around nine miles north west of Norwich. On instruction of Executors

Tenure

Freehold

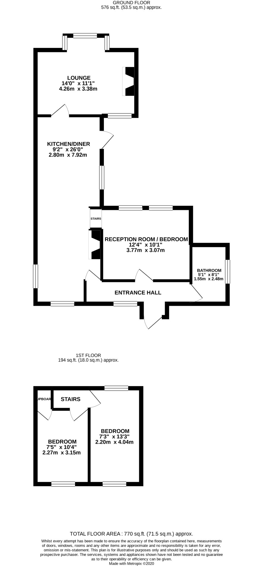
Ground Floor

Entrance hall, reception room / bedroom, kitchen / dining room, lounge

First Floor

Landing, two bedrooms.

Outside

Side and rear garden in need of attention, timber shed, outbuilding, off-road parking.

Viewings

Viewings are being scheduled - the next are Wednesday 2 December - APPOINTMENT IS ESSENTIAL. Call the Norwich office on 01603 505100 to book a slot on the next viewing day

Energy Efficiency Rating (EPC)

Current Rating F

Services

Interested parties are requested to make their own enquiries to the relevant authorities as to the availability of services.

Local Authority

Broadland District Council

Solicitors

Rogers & Norton, The Old Chapel, 5-7 Willow Lane, Norwich, NR2 1EU, Ref: Ashleigh Skeet

Important Notice to Prospective Buyers:

We draw your attention to the Special Conditions of Sale within the Legal Pack, referring to other charges in addition to the purchase price which may become payable. Such costs may include Search Fees, reimbursement of Sellers costs and Legal Fees, and Transfer Fees amongst others.

Additional Fees

Administration Charge - 0.3% inc VAT of the purchase price, subject to a minimum of £954 inc VAT, payable on exchange of contracts.

Disbursements - Please see the legal pack for any disbursements listed that may become payable by the purchaser on completion.

View Larger Map

Disclaimer: The map preview provided above is for general guidance only and may not accurately reflect the exact location or surrounding buildings. Prospective buyers and interested parties are strongly advised to independently verify the precise location and surroundings before bidding.