For Sale By Auction | 11:00, 10 February 2021 | Lot 25

Apartment 601, 7 Anchor Street, Ipswich, IP3 0BW

Sold £167,000

  • Flat
  • 2 Bedrooms
  • Tenure: Leasehold. 125 years from 2003

Call the team on 01473 558 888 for more information

Auction Date

Wed 10/02/2021

Auction Time

11:00

Auction Venue

Livestream Auction

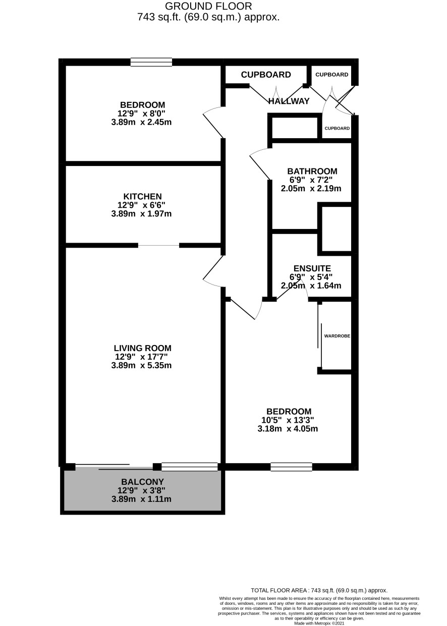
A 6th floor purpose built apartment with outstanding river views

Situated along the town's regenerated waterfront with its range of cafes, bars and restaurants is this 6th floor apartment with a balcony directly facing the river and views across the marina and towards the Orwell bridge. The property can be found in excellent order throughout and offers 2 bedroom (1 en-suite) accommodation featuring a fitted kitchen with built-in appliances, laminate flooring, electric heating, double glazing and secure underground parking. Suited to the owner occupier or investor and priced competitively for the auction market, we believe this to be an opportunity not to be missed.

Tenure

Leasehold. 125 years from 2003

Lease Details

Term - 125 years from 2003 Ground Rent - £250 per annum Service Charge - £1400 per annum

Energy Efficiency Rating (EPC)

Current Rating C

Services

Interested parties are requested to make their own enquiries to the relevant authorities as to the availability of services.

Local Authority

Ipswich Borough Council. Tel: 01473 432000

Solicitors

Photiades Solicitors, Longmire House, 36-38 London Road, St Albans, AL1 1NG, Ref: Will Harvey, Tel: 01727 833134

Important Notice to Prospective Buyers:

We draw your attention to the Special Conditions of Sale within the Legal Pack, referring to other charges in addition to the purchase price which may become payable. Such costs may include Search Fees, reimbursement of Sellers costs and Legal Fees, and Transfer Fees amongst others.

Additional Fees

Administration Charge - 0.3% inc VAT of the purchase price, subject to a minimum of £954 inc VAT, payable on exchange of contracts.

Disbursements - Please see the legal pack for any disbursements listed that may become payable by the purchaser on completion.

View Larger Map

Disclaimer: The map preview provided above is for general guidance only and may not accurately reflect the exact location or surrounding buildings. Prospective buyers and interested parties are strongly advised to independently verify the precise location and surroundings before bidding.