For Sale By Auction | 11:00, 10 February 2021 | Lot 70

172 Norwich Road, Wroxham, Norwich, Norfolk, NR12 8SA

Sold £164,000

  • Terraced House
  • 3 Bedrooms
  • Tenure: Freehold

Call the team on 01603 505 100 for more information

Auction Date

Wed 10/02/2021

Auction Time

11:00

Auction Venue

Livestream Auction

Three bedroom bay fronted terrace house with off road parking

A three bedroom mid terrace house which is now vacant and in need of minor updating and redecoration. The property has gas central heating, sealed unit double glazing, a long rear garden and there is an off road parking space to the front of the property. Ideal for investment or first purchase. Wroxham is a highly popular Broadland village with a comprehensive range of shops, community facilities, all levels of schools and a regular bus and train service to all major local centres including the City of Norwich, which lays approximately 8 miles to the south east.

Tenure

Freehold

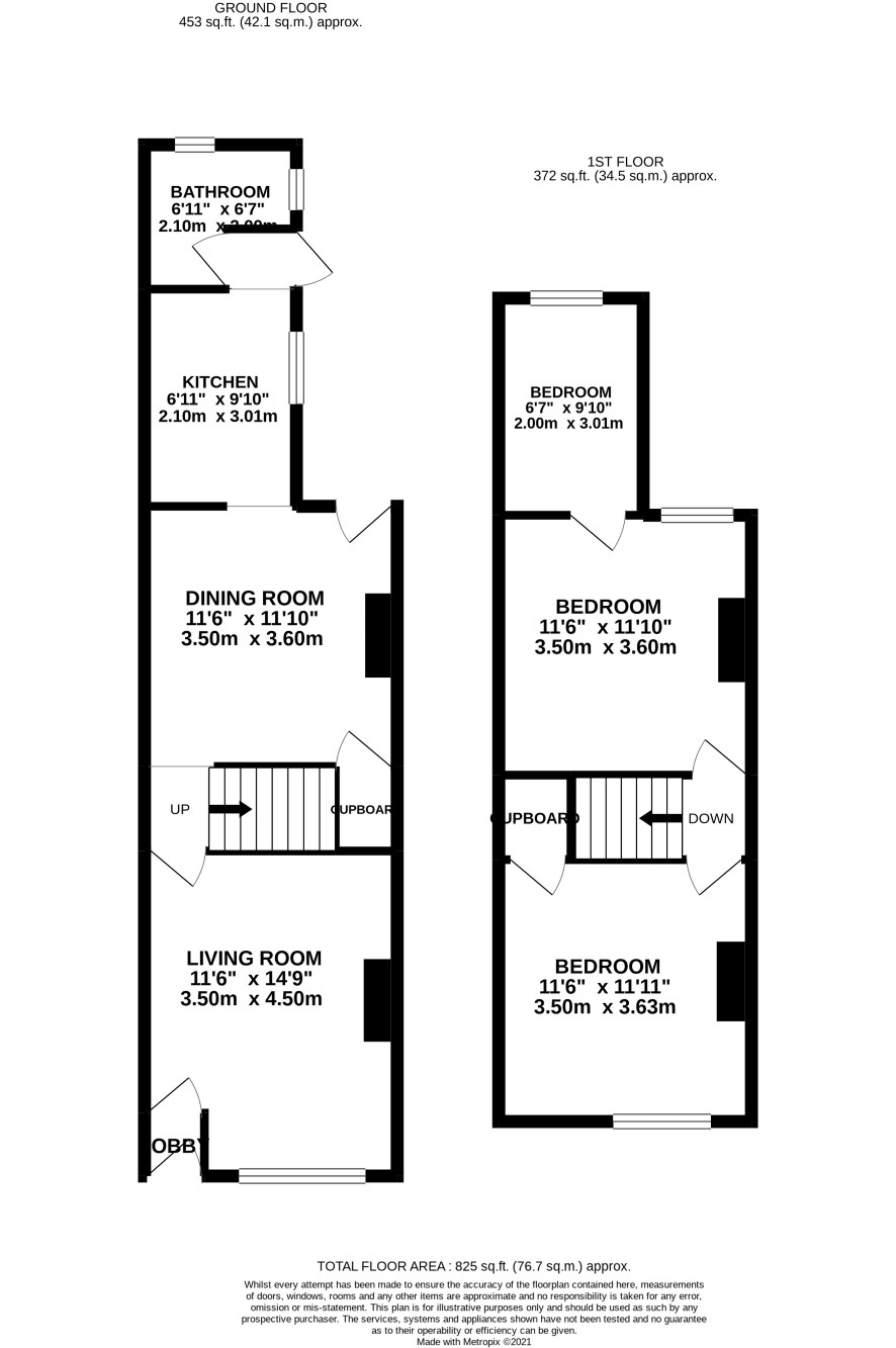
Ground Floor

Lounge, dining room, kitchen, shower room.

First Floor

Three bedrooms, (third through second)

Outside

Front garden with off road parking space. Long, mainly lawned rear garden, timber shed.

Viewings

Individual 15-minute appointments can be arranged - the next are Friday 5 February - BOOKING ESSENTIAL - Please call the Norwich office on 01603 505100 to book the next available slot

Energy Efficiency Rating (EPC)

Current Rating D

Services

Interested parties are requested to make their own enquiries to the relevant authorities as to the availability of services.

Local Authority

Broadland District Council. Tel: 01603 4311331

Solicitors

Cozens-Hardy LLP, Castle Chambers, Opie Street, Norwich, NR1 3DP, Ref: Charlotte Hunter, Tel: 01603 625231

Important Notice to Prospective Buyers:

We draw your attention to the Special Conditions of Sale within the Legal Pack, referring to other charges in addition to the purchase price which may become payable. Such costs may include Search Fees, reimbursement of Sellers costs and Legal Fees, and Transfer Fees amongst others.

Additional Fees

Administration Charge - 0.3% inc VAT of the purchase price, subject to a minimum of £954 inc VAT, payable on exchange of contracts.

Disbursements - Please see the legal pack for any disbursements listed that may become payable by the purchaser on completion.

View Larger Map

Disclaimer: The map preview provided above is for general guidance only and may not accurately reflect the exact location or surrounding buildings. Prospective buyers and interested parties are strongly advised to independently verify the precise location and surroundings before bidding.