For Sale By Auction | 11:00, 24 March 2021 | Lot 51

7 Oil Mill Lane, Wisbech, Cambridgeshire, PE13 1NW

Sold £74,500

  • Mixed Use
  • Tenure: Freehold

Call the team on 01733 889833 for more information

Auction Date

Wed 24/03/2021

Auction Time

11:00

Auction Venue

Livestream Auction

A former warehouse with planning permission to convert to residential and commercial accommodation. The current owners now have a flood risk report which on re application would help on a reapplication to create residential accommodation on the ground floor

This former warehouse now has planning permission for an office on the ground floor and two 2 bedroom flats on the first and second floors. Planning reference Fenland District Council F/YR17/0036/F. The council have extended the planning permission due to pandemic details found in the legal pack. The permission is now valid until 1st May 2021. The owners have received a favourable flood risk report which will help on re application to create residential accommodation on the ground floor. Wisbech offers various shopping and recreational facilities and lies between Peterborough and Kings Lynn. A station can be found at March providing links into London Kings Cross.

Tenure

Freehold

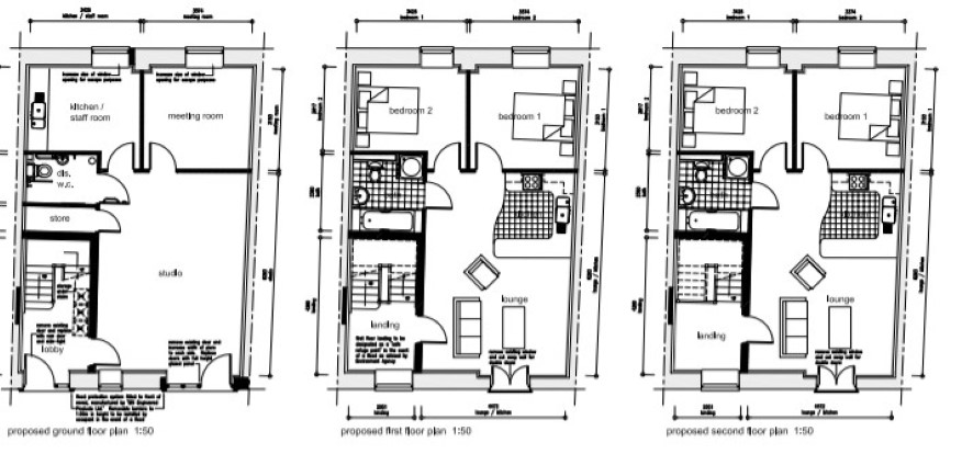
Proposed Accommodation

Ground Floor

Studio, meeting room, kitchen, w.c.

First Floor

Lounge, Kitchen, 2 Bedrooms and a Bathroom

Second Floor

Lounge, Kitchen, 2 Bedrooms and a Bathroom.

Services

Interested parties are requested to make their own enquiries to the relevant authorities as to the availability of services.

Local Authority

Fenland District Council. Tel: 01354 654321

Solicitors

Hayes & Storr, The Old County Court, County Court Road, King's Lynn, PE30 5EJ, Ref: Laura Leventhall, Tel: 01553 778900

Important Notice to Prospective Buyers:

We draw your attention to the Special Conditions of Sale within the Legal Pack, referring to other charges in addition to the purchase price which may become payable. Such costs may include Search Fees, reimbursement of Sellers costs and Legal Fees, and Transfer Fees amongst others.

Additional Fees

Administration Charge - 0.3% inc VAT of the purchase price, subject to a minimum of £1140 inc VAT, payable on exchange of contracts.

Disbursements - Please see the legal pack for any disbursements listed that may become payable by the purchaser on completion.

View Larger Map

Disclaimer: The map preview provided above is for general guidance only and may not accurately reflect the exact location or surrounding buildings. Prospective buyers and interested parties are strongly advised to independently verify the precise location and surroundings before bidding.