For Sale By Auction | 11:00, 24 March 2021 | Lot 52

14/15 Market Place , 1 Market Street, Whittlesey, Peterborough, Cambridgeshire, PE7 1AB

Sold After

  • Mixed Use
  • 2 Bedrooms
  • Tenure: Freehold

Call the team on 01733 889833 for more information

Auction Date

Wed 24/03/2021

Auction Time

11:00

Auction Venue

Livestream Auction

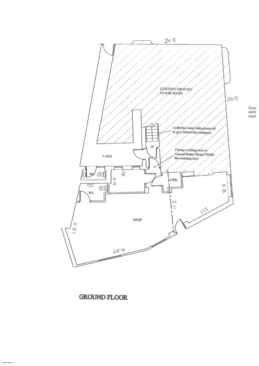
A Grade II listed thatched property with mixed use comprising two shops and two flats providing an income of £27,180 pa.

This seventeenth century Grade II listed property has been entered as a mixed use lot comprising two shops on the ground floor and two one bedroom flats on the first floor. The current owners have invested in the units to provide up to date accommodation. No 14 is let to Whittlesey Osteopaths and No 15 is let to Blinds in Harmony. The two first floor flats offer fitted kitchens with oven, hob and shower rooms. Whittlesey is located east of Peterborough and offers a variety of shops together with a rail link into Peterborough and London Kings Cross.

Tenure

Freehold

No 14

Shop, treatment room 1, treatment room 2, office, W.C.

No 15

Two shop areas, kitchen, external W.C.

Flat 1

Lounge-diner, kitchen, bedroom with en-suite shower. The shower room is at the other end of the bedroom and not as shown on the plan.

Flat 2

Lounge/kitchen, bedroom, shower room.

Services

Interested parties are requested to make their own enquiries to the relevant authorities as to the availability of services.

Local Authority

Fenland District Council. Tel: 01354 654321

Solicitors

Buckles Solicitors, Grant House, 101 Bourges Boulevard, Peterborough, PE1 1NG, Ref: Grace Li, Tel: 01733 888764

Important Notice to Prospective Buyers:

We draw your attention to the Special Conditions of Sale within the Legal Pack, referring to other charges in addition to the purchase price which may become payable. Such costs may include Search Fees, reimbursement of Sellers costs and Legal Fees, and Transfer Fees amongst others.

Additional Fees

Administration Charge - 0.3% inc VAT of the purchase price, subject to a minimum of £1140 inc VAT, payable on exchange of contracts.

Disbursements - Please see the legal pack for any disbursements listed that may become payable by the purchaser on completion.

View Larger Map

Disclaimer: The map preview provided above is for general guidance only and may not accurately reflect the exact location or surrounding buildings. Prospective buyers and interested parties are strongly advised to independently verify the precise location and surroundings before bidding.