For Sale By Auction | 11:00, 05 May 2021 | Lot 16

Wix Methodist Church, Colchester Road, Wix, Manningtree, Essex, CO11 2RS

Sold £313,000

  • House (unspecified)
  • Tenure: Freehold

Call the team on 01473 558 888 for more information

Auction Date

Wed 05/05/2021

Auction Time

11:00

Auction Venue

Livestream Auction

A former Methodist Church with potential for alternative use.

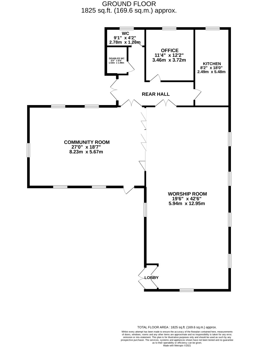
Situated in the north Essex village of Wix some six miles from Harwich and fifteen miles from Colchester is this redundant detached Methodist Church with plenty of parking space to the front and garden to the rear. This single storey property extends to over 1,800 sq ft (68 sq m) with large triple aspect main rooms, arched windows, roof height ceilings and offers great potential for alternative use including residential (subject to Planning Permission). An exciting project for the discerning and imaginative purchaser and strong interest from developers and end users alike is anticipated.

Tenure

Freehold

Viewing

Viewing has been scheduled for Wednesday 28th April - BOOKING AN APPOINTMENT IS ESSENTIAL Please call 01473 558888 or email ipswich@auctionhouse.co.uk to be allocated a time slot on your preferred day.

Services

Interested parties are requested to make their own enquiries to the relevant authorities as to the availability of services.

Local Authority

Tendring District Council. Tel: 01255 686868

Solicitors

Capsticks LLP, Toronto Square, Toronto Street, Leeds, LS1 2HJ, Ref: Olivia Adams, Tel: 0113 322 5560

Important Notice to Prospective Buyers:

We draw your attention to the Special Conditions of Sale within the Legal Pack, referring to other charges in addition to the purchase price which may become payable. Such costs may include Search Fees, reimbursement of Sellers costs and Legal Fees, and Transfer Fees amongst others.

Additional Fees

Administration Charge - 0.3% inc VAT of the purchase price, subject to a minimum of £1140 inc VAT, payable on exchange of contracts.

Disbursements - Please see the legal pack for any disbursements listed that may become payable by the purchaser on completion.

View Larger Map

Disclaimer: The map preview provided above is for general guidance only and may not accurately reflect the exact location or surrounding buildings. Prospective buyers and interested parties are strongly advised to independently verify the precise location and surroundings before bidding.